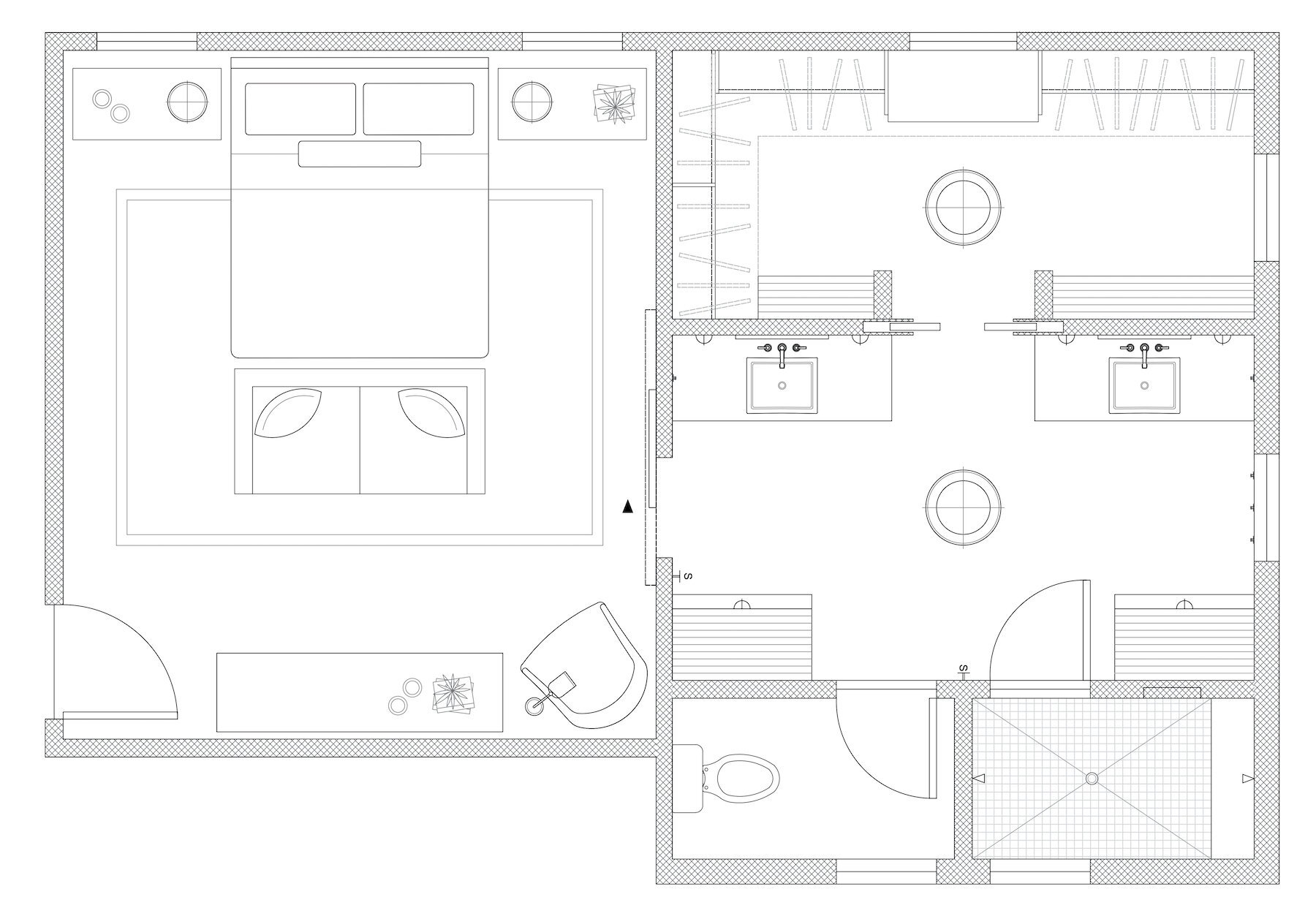
Are you tired of dealing with cramped bedroom closets that aren’t recessed into the wall? It can be frustrating trying to fit all your clothes and shoes into a space that feels too small. Fortunately, there are solutions to this common problem that can help you maximize your storage space.
One option to consider is installing custom-built closet organizers. These can be tailored to fit your specific needs and can make a big difference in how much you can store in your closet. By utilizing every inch of space efficiently, you can create a more organized and functional closet.
House Plan Bedroom Closets Not Recessed
House Plan Bedroom Closets Not Recessed
Another solution is to invest in freestanding wardrobe units that can be placed outside of the closet. These units come in a variety of sizes and styles, allowing you to choose the one that best fits your space and aesthetic preferences. This can help alleviate the constraints of a non-recessed closet.
Consider adding shelving above or below your hanging rods to maximize vertical storage space. This can be a great way to store items like hats, bags, or shoes that don’t hang well on a rod. By utilizing all available space, you can make the most of your closet.
Don’t let a non-recessed bedroom closet cramp your style. With a little creativity and some smart storage solutions, you can transform your closet into a functional and organized space. Say goodbye to clutter and hello to a well-organized wardrobe that meets all your storage needs.
Glam Main Bedroom Closet Reveal Randi Garrett Design
SMALL MASTER CLOSET FLOOR PLAN DESIGN TIPS MELODIC LANDING
Update On Our Addition And Second Guessing The Master Bedroom
Read This Before Redoing Your Bedroom Closet This Old House
SMALL MASTER CLOSET FLOOR PLAN DESIGN TIPS MELODIC LANDING





