Have you been dreaming of the perfect house plan with 4 bedrooms? Look no further! Finding the ideal layout for your family can be a fun and exciting journey.
With a 4-bedroom house plan, you’ll have plenty of space for your family to grow and thrive. Whether you need extra room for guests, a home office, or a playroom, this layout offers flexibility and comfort.
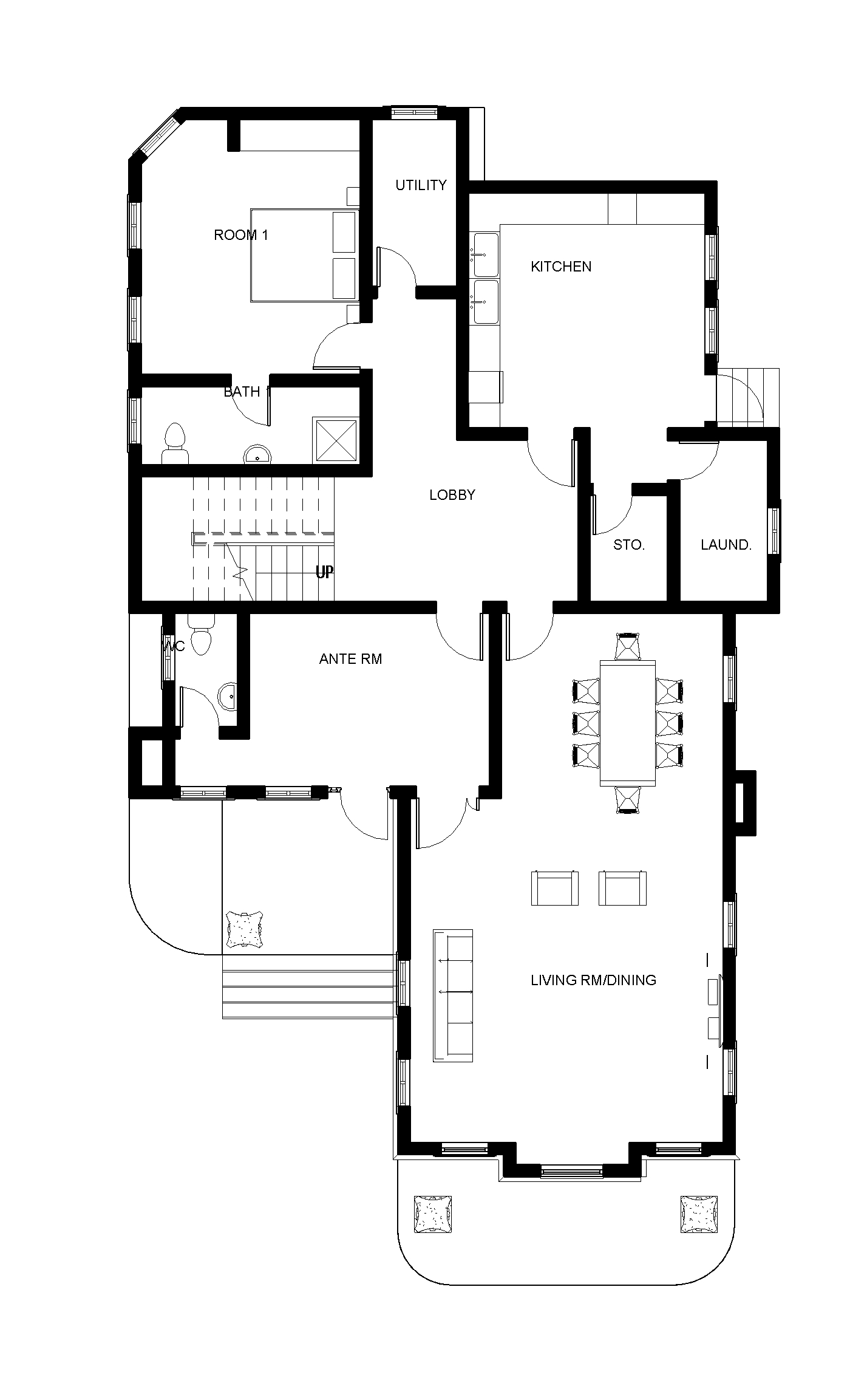
House Plan 4 Bedrooms
House Plan 4 Bedrooms: The Ultimate Family Home
One of the key benefits of a 4-bedroom house plan is the versatility it provides. You can customize the space to meet your specific needs, from adding a bonus room to creating a cozy reading nook.
Additionally, a 4-bedroom layout allows for privacy and personal space for each family member. This is especially important for larger families or those who frequently host guests.
When selecting a house plan with 4 bedrooms, consider factors such as layout, square footage, and architectural style. Think about how you envision your family living and moving within the space, and choose a design that reflects your lifestyle.
In conclusion, a 4-bedroom house plan is an excellent choice for families looking for a balance of space, comfort, and functionality. With the right layout, you can create a home that meets your needs and enhances your quality of life.
4 Bedroom Duplex Ref 4065 House Plan View NIGERIAN HOUSE PLANS
Truoba Class 520 4 Bedroom Modern House Plan
House Plan ID 19790 4 Bedrooms With 5760 2136 Bricks And 99 Corrugates
4 Bedroom House Plans Infinity Homes Custom Built Homes In Mobile Alabama
Plan 45467 4 Bedroom Classic Ranch House Plan With Covered Porc





