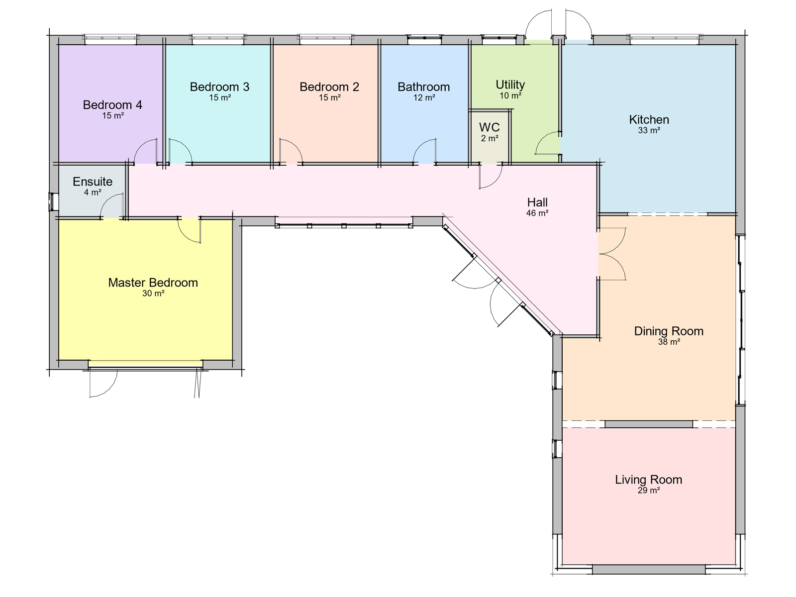
Are you dreaming of a cozy 4-bedroom bungalow that you can call home? Look no further! Our House Plan 4 Bedroom Bungalow is the perfect choice for your family’s needs.
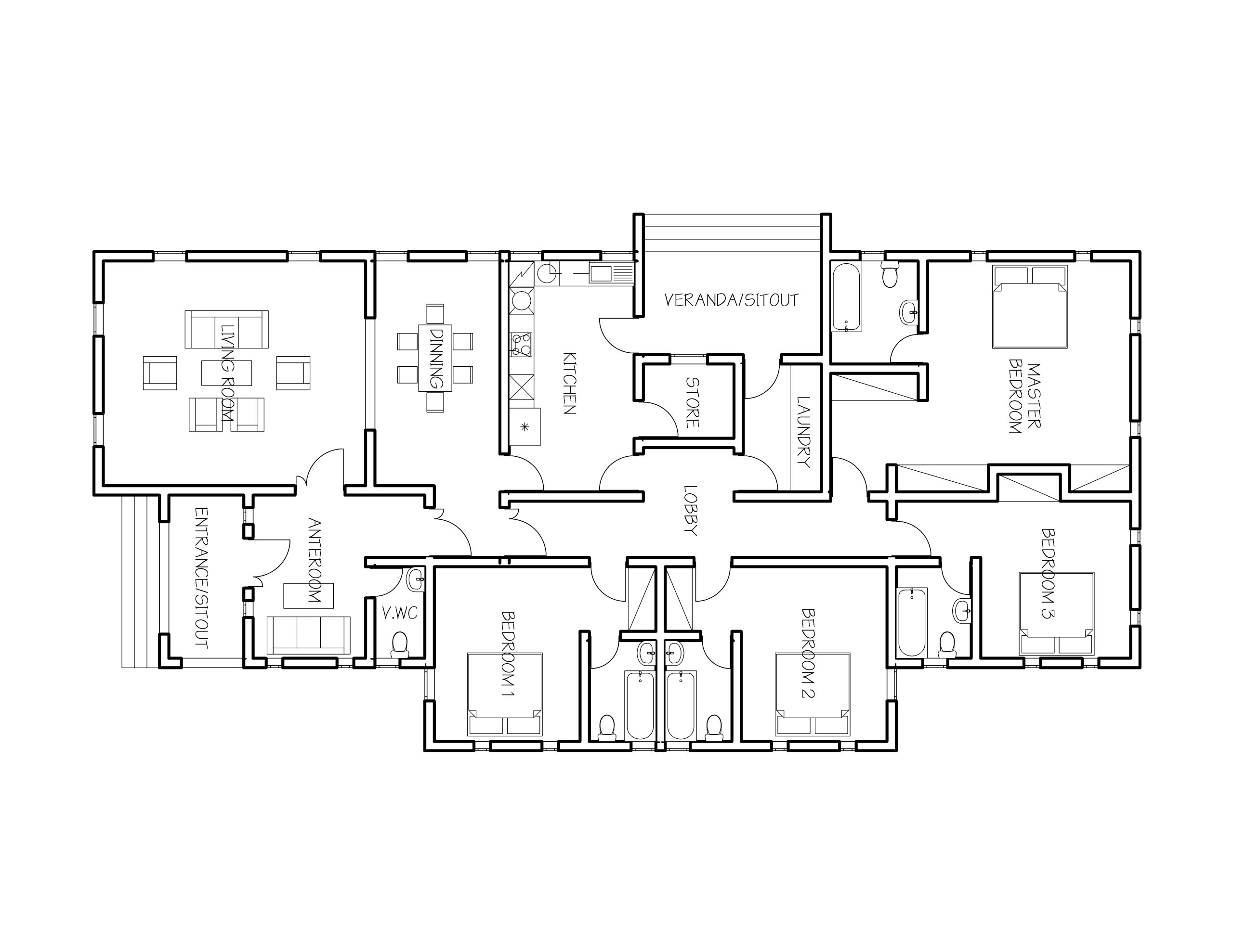
This spacious bungalow features four bedrooms, ideal for a growing family or hosting guests. With a large living room, dining area, and kitchen, there’s plenty of space for everyone to relax and unwind.
House Plan 4 Bedroom Bungalow
House Plan 4 Bedroom Bungalow
The master bedroom comes complete with an ensuite bathroom for added convenience and privacy. The other three bedrooms are perfect for children, a home office, or a guest room.
Enjoy the outdoors on the front porch or back patio, perfect for relaxing with a cup of coffee or hosting a barbecue with friends and family. The large backyard provides ample space for outdoor activities.
With a modern design and open floor plan, this House Plan 4 Bedroom Bungalow is both functional and stylish. Whether you’re looking for a family home or a vacation retreat, this bungalow has everything you need.
Don’t wait any longer to make your dream home a reality. Contact us today to learn more about our House Plan 4 Bedroom Bungalow and start planning for your future in a beautiful new space.
4 Bedroom Dormer Bungalow Plans The Aconbury
4 Bedrooms Bungalow House Plan AfroHousePlans
Four Bedroom Bungalow Plan The Blakemere Houseplansdirect
Outstanding 4 Bedroom Bungalow Floor Plan Sample
4 Bedroom Bungalow plan With Measurement





