Looking for a cozy house plan with 2 bedrooms and 1 bath? You’ve come to the right place! This type of home is perfect for small families, couples, or individuals looking for a comfortable and practical living space.
House Plan 2 Bedrooms 1 Bath is a popular choice for those who want a simple yet functional layout. With two bedrooms, you have the flexibility to use the extra room as a home office, guest room, or even a nursery. The single bathroom ensures convenience and efficiency for everyday living.
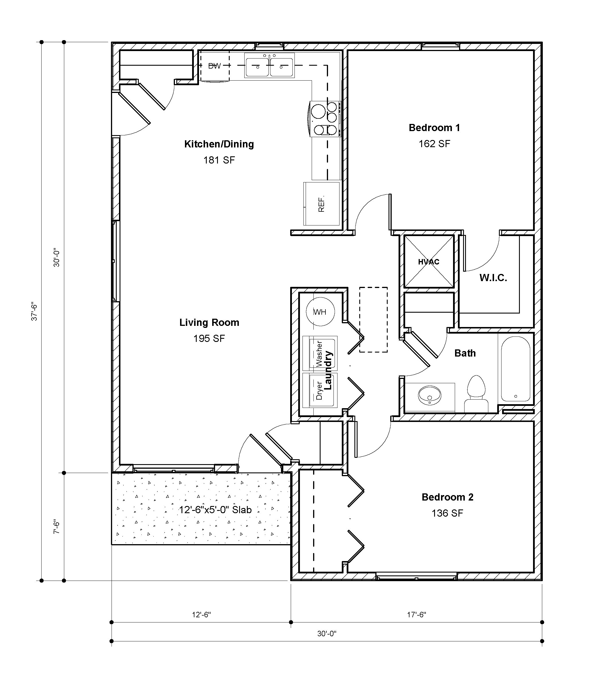
House Plan 2 Bedrooms 1 Bath
House Plan 2 Bedrooms 1 Bath: Features and Benefits
One of the key benefits of this house plan is its compact size, making it easy to maintain and keep clean. The open-concept design creates a spacious feel, while still providing privacy in the bedrooms. Additionally, the simple layout allows for easy furniture arrangement and customization.
With a House Plan 2 Bedrooms 1 Bath, you can enjoy a comfortable and functional living space without sacrificing style. Whether you prefer a modern, traditional, or minimalist aesthetic, this versatile layout can be tailored to suit your personal taste and lifestyle. Plus, the affordability of this design makes it a great option for first-time homebuyers or those looking to downsize.
Overall, House Plan 2 Bedrooms 1 Bath offers the perfect balance of comfort, functionality, and affordability. If you’re in the market for a practical yet stylish home design, this layout is definitely worth considering. Say goodbye to cramped living spaces and hello to a cozy retreat that you can truly call your own!
2 Bedroom 1 Bath Cottage Architectural Plans 797 SF 30 x27 Tiny House Plans Traditional Small Home Floor Plan Digital Blueprint PDF Etsy
Plan 76474 Small Modern Floor Plan Vacation Home
Plan 42922 Small Ranch Home Floor Plan With Two Bedrooms And Tw
2 Bedroom 1 Bath Floor Plan House Plan 1000 Sq Ft The Wildflower House Model 00004 Etsy
2 Bedroom 1 Bath House Plan





