Looking for a cozy and practical house plan with 2 bedrooms? You’ve come to the right place! A 2-bedroom design is perfect for small families, couples, or even as a guest house.
With a 2-bedroom house plan, you can create a comfortable living space that meets your needs without unnecessary extra space. It’s a great option for those looking for a simple yet functional layout.
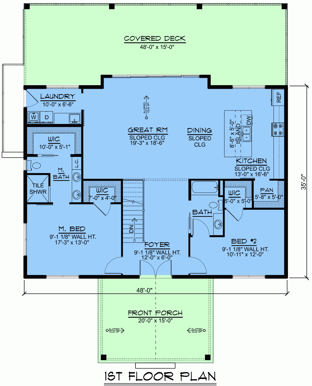
House Plan 2 Bedroom Design
House Plan 2 Bedroom Design
When designing a 2-bedroom house plan, consider the layout that best suits your lifestyle. Whether you prefer an open concept living space or more defined rooms, there are endless possibilities to customize your dream home.
One popular option is to have the bedrooms on opposite sides of the house for added privacy. This layout is ideal for families with children or roommates who value their own space.
Another consideration is the inclusion of a home office or study area. With more people working remotely, having a designated workspace within your 2-bedroom house plan can be a game-changer.
Ultimately, the key to a successful 2-bedroom house plan is to prioritize functionality and efficiency. By carefully considering your needs and preferences, you can create a space that is both comfortable and practical for everyday living.
So, whether you’re looking to downsize, build a vacation home, or simply want a cozy living space, a 2-bedroom house plan is a versatile and cost-effective option that can be tailored to suit your unique lifestyle.
Small House Plans 7×6 With 2 Bedrooms House Plans 3D
2 Bedroom House Plans Houzone
Simple House Plans 6×7 With 2 Bedrooms Hip Roof House Plans 3D
2 Bedroom House Plans Family Home Plans
2 Bedroom Apartment House Plans





