Looking for the perfect ground floor 2 bedroom house plans? You’re in luck! We’ve got just what you need to create your dream home. Whether you’re a first-time homebuyer or looking to downsize, these plans are versatile and practical.
With a focus on functionality and style, our ground floor 2 bedroom house plans are designed to maximize space without compromising on comfort. From open-concept layouts to cozy nooks, there’s something for everyone in our collection.
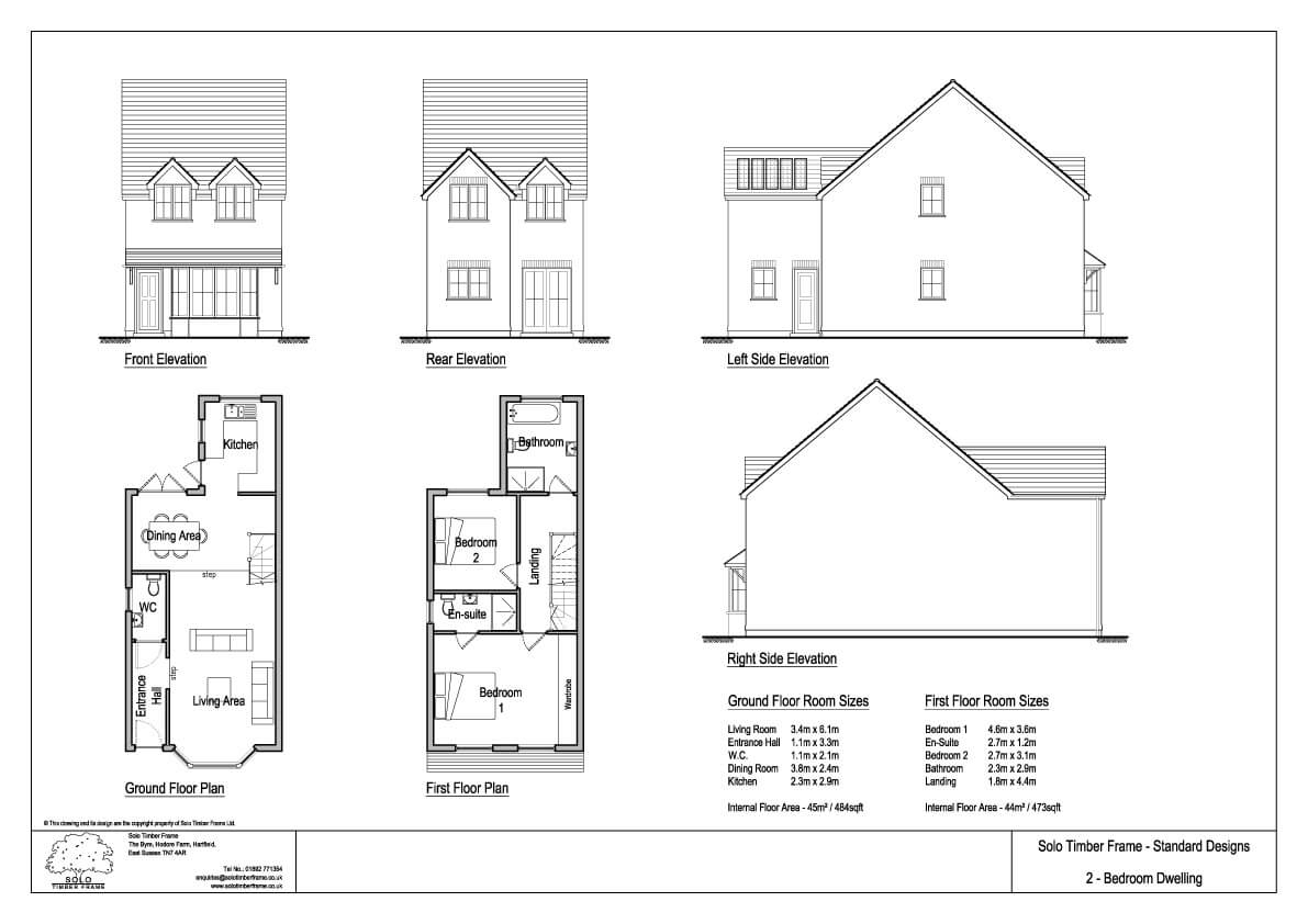
Ground Floor 2 Bedroom House Plans
Ground Floor 2 Bedroom House Plans: The Ultimate Guide
Each of our house plans is carefully crafted to meet the needs of modern homeowners. You’ll find features like spacious kitchens, inviting living areas, and private master suites. With options for customization, you can truly make your house a home.
Whether you prefer a traditional aesthetic or a more contemporary design, our ground floor 2 bedroom house plans offer flexibility and versatility. You can easily personalize your space to reflect your unique taste and lifestyle.
From energy-efficient appliances to smart storage solutions, our house plans are designed with modern living in mind. Say goodbye to wasted space and hello to a home that works for you. With our ground floor 2 bedroom house plans, you can live comfortably and stylishly.
Ready to start building your dream home? Explore our collection of ground floor 2 bedroom house plans and find the perfect fit for you. With our expertly designed layouts and customizable options, you can create a space that’s truly yours.
Small House Design 7×7 With 2 Bedrooms House Plans 3D
Small Home Plan 2 Bedroom Two Bedrooms
Townsend 2 2 Bedroom House Design Designs Solo Timber Frame Homes
House Plan 2 Bedrooms 1 Bathrooms Garage 3281 Drummond House Plans
2 Bedroom House Plans Houzone





