Looking for the perfect four-bedroom house floor plan on AutoCAD? You’ve come to the right place! Planning out your dream home can be exciting yet overwhelming, but with the right tools and resources, it can be a breeze.
AutoCAD is a powerful design software that allows you to create detailed floor plans with ease. Whether you’re a seasoned designer or just starting out, AutoCAD offers a user-friendly interface that makes designing your dream home a fun and creative process.
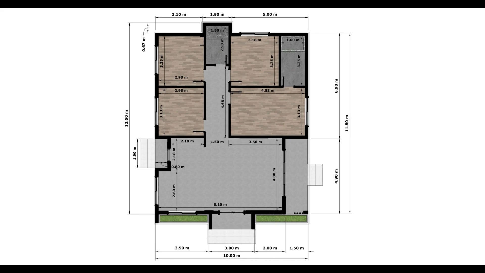
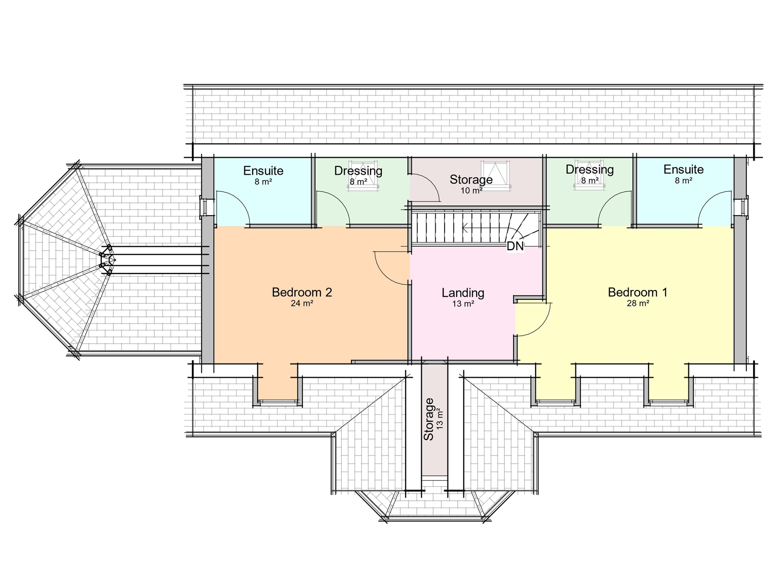
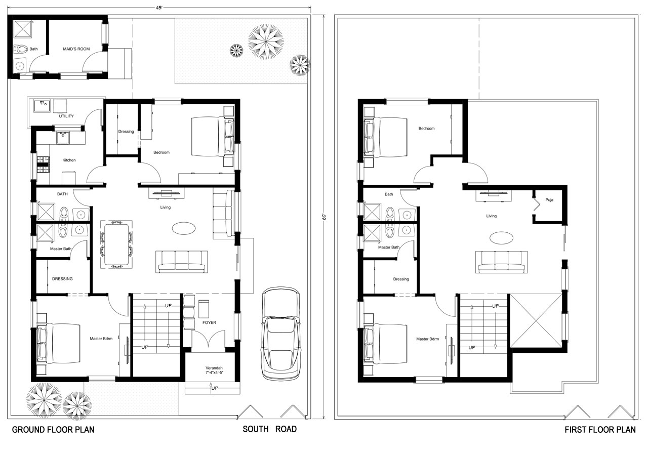
Four Bedroom House Floor Plan Autocad
Four Bedroom House Floor Plan AutoCAD Made Easy
With AutoCAD, you can easily customize your floor plan to fit your specific needs and preferences. From the layout of the rooms to the placement of windows and doors, AutoCAD gives you the flexibility to design a space that is uniquely yours.
One of the key benefits of using AutoCAD for your floor plan design is the precision and accuracy it offers. You can easily measure and scale your design to ensure that everything fits perfectly, giving you peace of mind knowing that your dream home will be just as you imagined it.
So, if you’re ready to bring your dream home to life, consider using AutoCAD for your four-bedroom house floor plan design. With its user-friendly interface and powerful design tools, you’ll be well on your way to creating a space that is truly your own.
Start designing your dream home today with AutoCAD and see how easy it can be to bring your vision to life!
Four Bedroom Dormer House Plans The Callow
Victory House Plan Two Story Modern 4 Bedroom Affordable Home Design MM 2980
4 Bed Room U0026 4 Bath Room Full Construction House Plans With AUTO CAD File Custom Modern House Plans Home Floor Plans Cabin Cottage Plans Building Plans
Small House Design 7m X 10m With 4 Bedrooms House Plans 3D
4 Bedroom House Plans Houzone





