Looking for the perfect five-bedroom house plan in PDF format? You’ve come to the right place! Whether you’re building your dream home or planning a renovation, having a detailed floor plan is essential.
With a five-bedroom house plan in PDF, you can easily visualize the layout, room sizes, and overall flow of your future home. This digital format allows for easy sharing with builders, architects, and designers, making the planning process smooth and efficient.
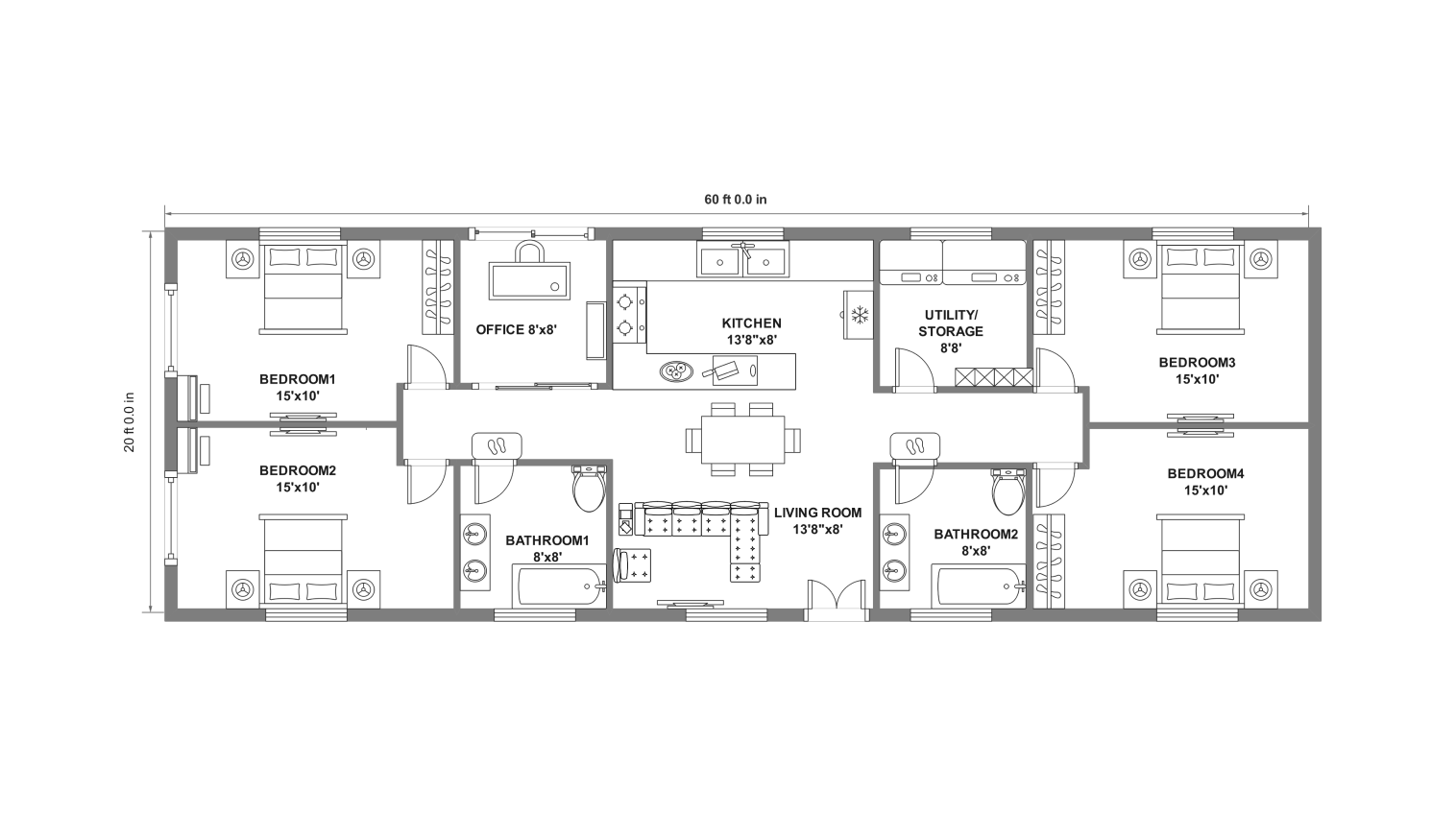
Five Bedroom House Plans Pdf
Five Bedroom House Plans PDF
When choosing a five-bedroom house plan in PDF, consider factors such as your family size, lifestyle, and budget. Look for layouts that offer ample space for each bedroom, common areas for gathering, and any special features you desire, like a home office or outdoor living space.
Many websites offer a wide range of five-bedroom house plans in PDF format, allowing you to browse, compare, and find the perfect design for your needs. From traditional to modern styles, there’s a plan out there that will suit your preferences and vision for your dream home.
Once you’ve found the ideal five-bedroom house plan in PDF, it’s time to start turning your vision into reality. Work with professionals to customize the plan to your liking, ensuring that every detail is perfect for your family’s needs and preferences.
So, if you’re in the market for a five-bedroom house plan in PDF format, start exploring your options today. With the right plan in hand, you’ll be one step closer to creating the home of your dreams.
5 Bedroom House Plans U0026 Floor Plans
5 Bedroom House Plan
5 bedroom house plan with photos double story house plans pdf download Nethouseplans Nethouseplans
5 Bedroom House Plans U0026 Floor Plans
5 Bedroom House Plan





