Are you considering building a new home or renovating your current one? If so, you may be thinking about the layout and design of your bedrooms. One popular option is the East Face Double Bedroom House Plans, which provide a comfortable and functional living space.
These plans typically feature two spacious bedrooms located on the east side of the house, allowing for plenty of natural light to enter the rooms throughout the day. This orientation can create a bright and airy atmosphere, perfect for relaxation and rest.
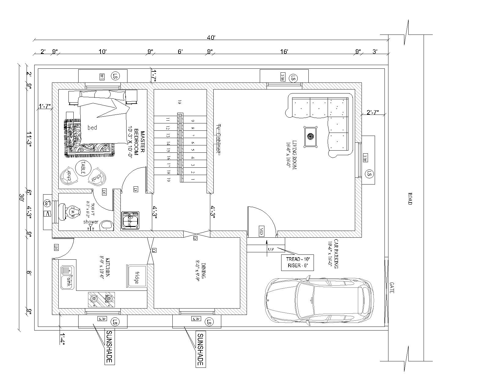
East Face Double Bedroom House Plans
Exploring the Benefits of East Face Double Bedroom House Plans
One of the main advantages of these plans is their energy efficiency. With the bedrooms facing east, you can take advantage of the morning sunlight to naturally warm up the rooms, reducing the need for artificial heating. This can lead to lower energy bills and a more sustainable living environment.
In addition, the east-facing bedrooms can offer stunning views of the sunrise, providing a beautiful backdrop to start your day. Imagine waking up to the soft glow of the sun streaming through your windows, creating a peaceful and serene atmosphere in your bedroom.
Furthermore, the layout of East Face Double Bedroom House Plans can allow for better airflow and ventilation, promoting a healthy indoor environment. This can help you stay comfortable and refreshed throughout the day, enhancing your overall well-being.
Consider incorporating East Face Double Bedroom House Plans into your home design to create a bright, energy-efficient, and comfortable living space for you and your family to enjoy for years to come.
East Facing House Vastu Plan Rooms Benefits Do U0026 Don ts
East Facing House Vastu Plan Rooms Benefits Do U0026 Don ts
Architectural Floor Plan Online For Personalized
2BHK U0026 3BHK East Facing Vastu House Plans 30X40 40X60 60X80
Myans Villas Type A East Facing Villas





