Are you looking for inspiration for double bedroom house plans in India? Look no further! Whether you’re building your dream home or renovating an existing space, finding the perfect layout is essential for creating a comfortable and functional living environment.
With the growing trend of nuclear families, double bedroom house plans have become increasingly popular in India. These layouts offer a perfect balance between space and affordability, making them ideal for young couples, small families, or individuals looking for a cozy home.
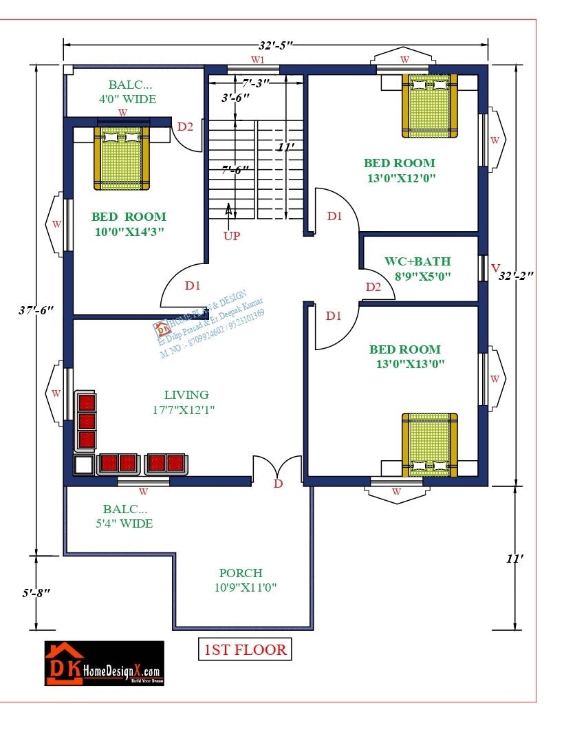
Double Bedroom House Plans In India
Double Bedroom House Plans In India
When designing your double bedroom house plan, consider factors such as natural light, ventilation, and privacy. Open floor plans with spacious living areas and well-defined zones for sleeping and entertaining are key to creating a comfortable and harmonious living space.
Opt for designs that maximize space utilization without compromising on style. Incorporate clever storage solutions, multifunctional furniture, and modern amenities to enhance the functionality and aesthetics of your home.
Whether you prefer a traditional Indian design with intricate details or a contemporary layout with clean lines and minimalist décor, there are plenty of options to choose from. Customize your double bedroom house plan to reflect your personal style and preferences, creating a space that feels like home.
In conclusion, finding the perfect double bedroom house plan in India is all about striking a balance between practicality and aesthetics. By carefully considering your needs and preferences, you can create a space that is both functional and beautiful, tailored to your lifestyle and budget.
Buy Duplex Best Selling House Plans 2 Family House Plan Online
1000 Sq Ft House Plan According To Vastu
10 Functional 2bhk House Plan Ideas Curated For Indian Homes
33X43 Affordable House Design DK Home DesignX
10 Modern 2 BHK Floor Plan Ideas For Indian Homes Happho





