Looking for the perfect cozy home? Cute 2 bedroom house plans might be just what you need! These charming designs offer comfort and style in a compact space. Whether you’re a first-time homebuyer or downsizing, these plans are a great option.
With two bedrooms, you have the flexibility to use the extra space as a home office, guest room, or hobby area. These plans are ideal for small families or individuals who want a manageable amount of space without sacrificing comfort.
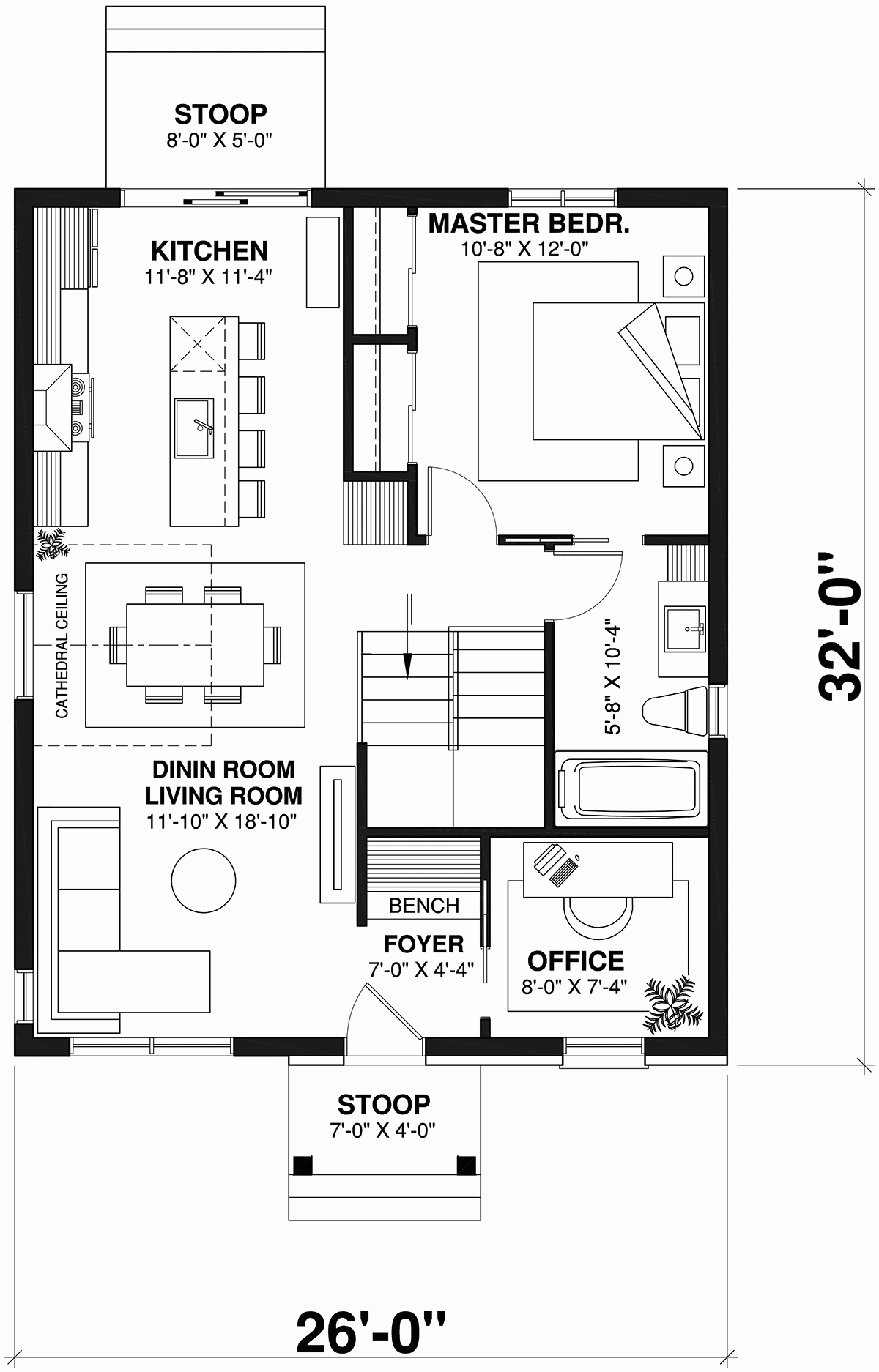
Cute 2 Bedroom House Plans
Cute 2 Bedroom House Plans: Features and Benefits
One of the key features of cute 2 bedroom house plans is their efficiency. With a smaller footprint, these homes are easier to maintain and more affordable to heat and cool. Additionally, the layout is designed to maximize space without feeling cramped.
Another benefit of these plans is their versatility. You can customize the design to suit your lifestyle and preferences. Whether you prefer an open-concept layout or more defined rooms, there are options available to make your house feel like home.
Overall, cute 2 bedroom house plans offer a perfect blend of comfort, style, and affordability. If you’re looking for a charming home that meets your needs without breaking the bank, these plans are worth considering. Start your search today and find the perfect design for your dream home!
Small House Plans 7×6 With 2 Bedrooms House Plans 3D
Cabin Plan 2 Bedrooms
Cozy 2 Bed Cottage House Plan 2596DH Architectural Designs House Plans
2 Bedroom Apartment House Plans
Plan 81833 Cute Small 2 Bedroom Country Bungalow House Plan Wit





