Looking for a cozy and spacious 4 bedroom house plan? The Cscdc 4 Bedroom Keystone House Plan might just be the perfect fit for you. This charming design offers ample living space for your family to enjoy.
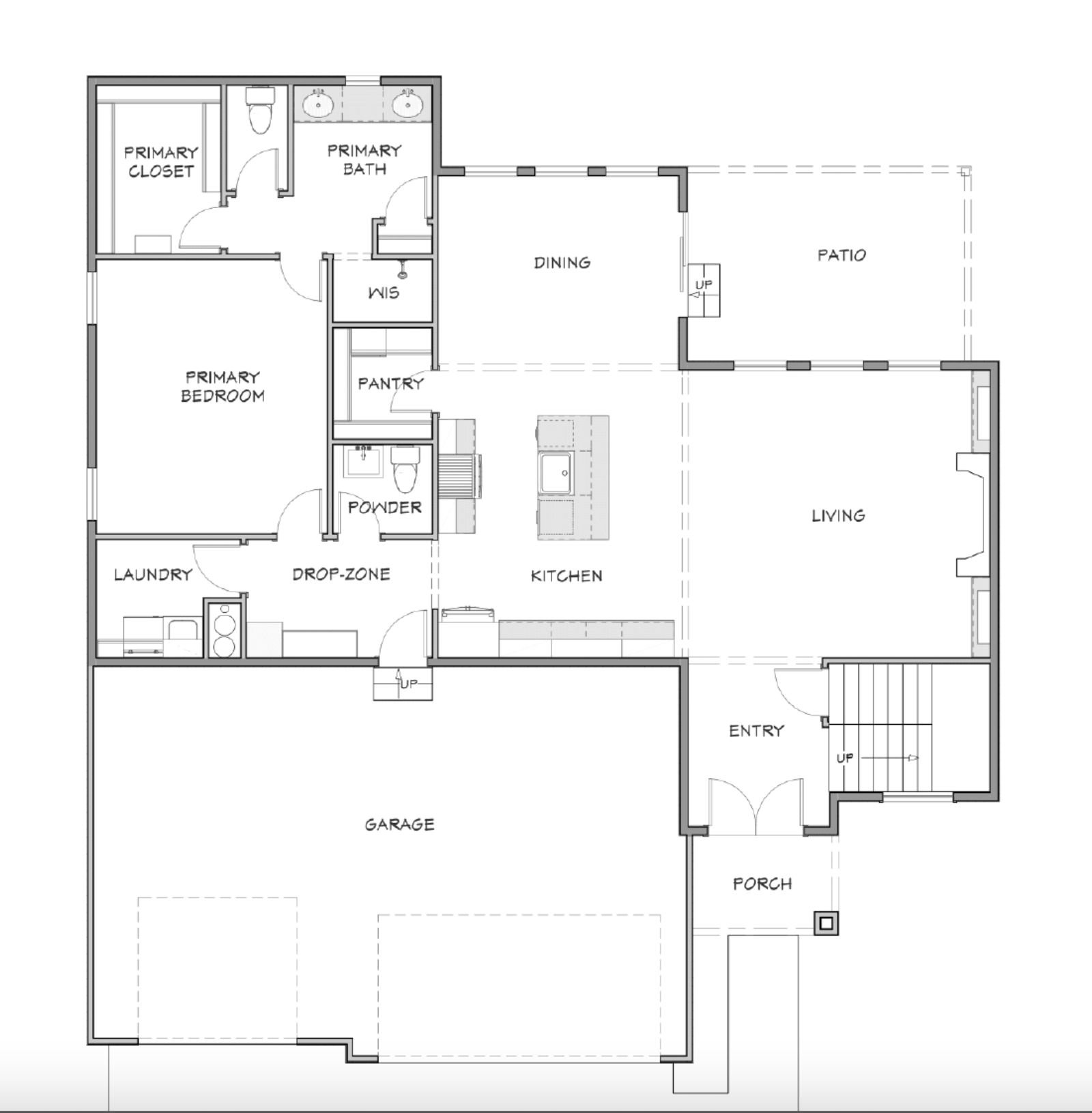
The Cscdc 4 Bedroom Keystone House Plan features a modern layout with four bedrooms, perfect for accommodating a growing family or hosting guests. The open-concept living area and kitchen provide a great space for entertaining and spending quality time with loved ones.
Cscdc 4 Bedroom Keystone House Plan
Explore the Features of the Cscdc 4 Bedroom Keystone House Plan
This house plan includes a master suite with a walk-in closet and ensuite bathroom, as well as three additional bedrooms that can be used as guest rooms, home offices, or playrooms. The outdoor patio and backyard offer a lovely space for outdoor activities and relaxation.
The Cscdc 4 Bedroom Keystone House Plan also includes a two-car garage, perfect for storing vehicles, bikes, or outdoor equipment. The design incorporates plenty of natural light, creating a bright and welcoming atmosphere throughout the home.
Whether you’re looking to upgrade to a larger home or build your dream house from scratch, the Cscdc 4 Bedroom Keystone House Plan offers a versatile and functional layout that can be customized to suit your needs and preferences.
Don’t miss out on the opportunity to explore the Cscdc 4 Bedroom Keystone House Plan and envision yourself living in this beautiful and spacious home. Contact us today to learn more about this design and start planning your future dream home!
Keystone Cottage Coastal House Plans From Coastal Home Plans
Keystone The Pecan Valley 76 KH30764P By Palm Harbor Homes RMHA
The Keystone Colony Custom Homes
Keystone Cottage Coastal House Plans From Coastal Home Plans
Gallant Fox Keystone Homes Keystone Homes





