Looking for cost-effective 4 bedroom house plans that won’t break the bank? You’ve come to the right place! We understand the importance of finding a home design that fits your budget while still meeting all your needs.
Our collection of cost-effective 4 bedroom house plans offers a variety of styles and layouts to suit your preferences. Whether you’re looking for a cozy bungalow or a spacious two-story home, we have options that will fit your budget and lifestyle.
Cost Effective 4 Bedroom House Plans
Cost Effective 4 Bedroom House Plans
When choosing a house plan, it’s essential to consider not only the initial cost but also long-term expenses. Our cost-effective 4 bedroom house plans are designed with efficiency in mind, helping you save money on utilities and maintenance in the long run.
From open-concept living areas to well-appointed bedrooms, our house plans are thoughtfully designed to maximize space and functionality without compromising on style. You can customize your chosen plan to suit your family’s unique needs and preferences.
Don’t settle for a cookie-cutter house plan that doesn’t quite meet your requirements. Our cost-effective 4 bedroom house plans offer the perfect balance of affordability, functionality, and style, making it easy for you to find your dream home without breaking the bank.
Ready to start building your dream home? Browse our collection of cost-effective 4 bedroom house plans today and find the perfect design for your family’s needs and budget.
House Plan 633 Burlington Cove Affordable House Plan
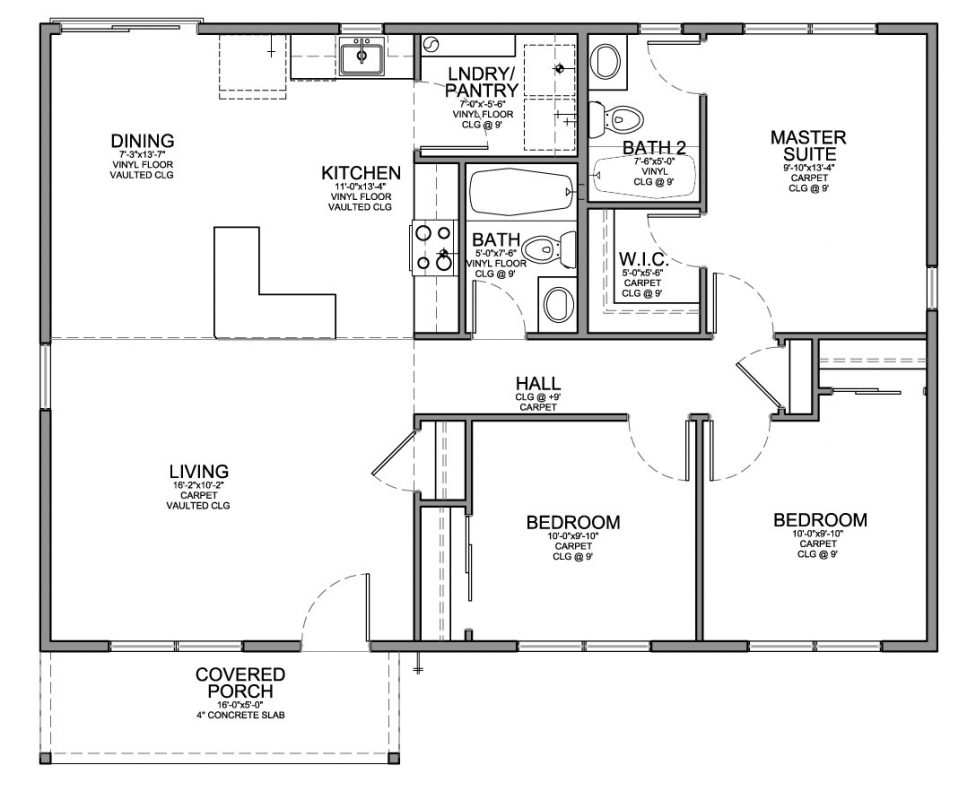
Floor Plan For Affordable 1 100 Sf House With 3 Bedrooms And 2 Bathrooms EVstudio
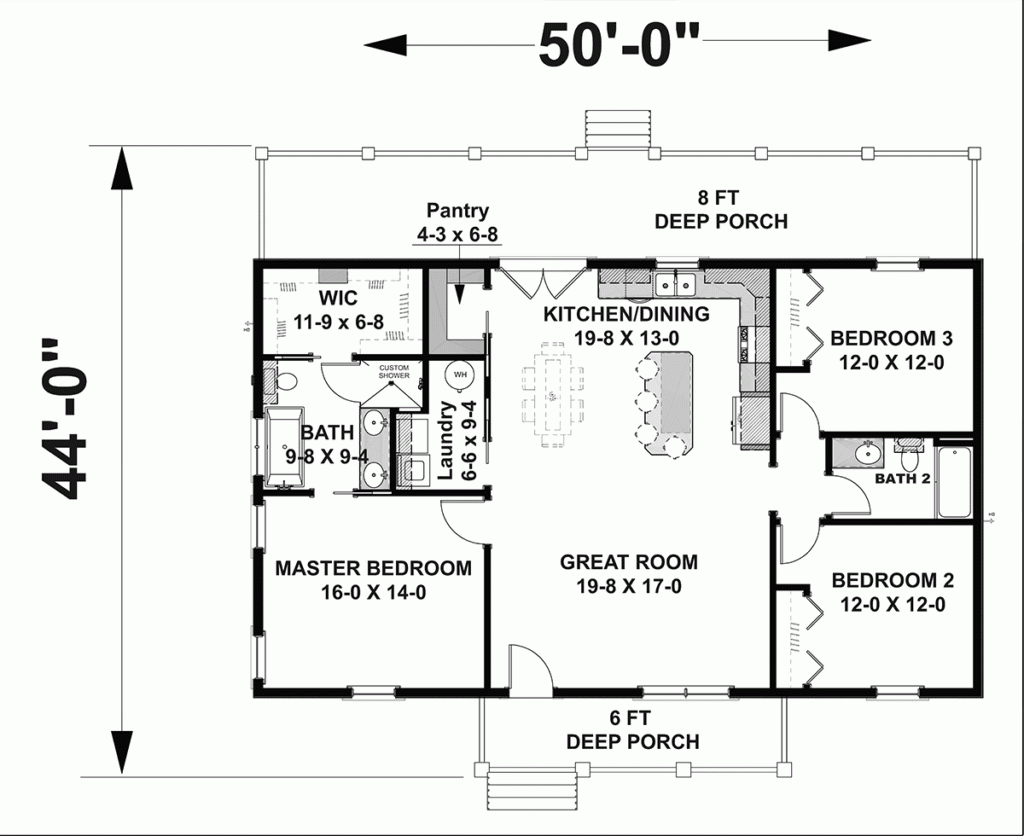
House Plan 5 Bedrooms 2 5 Bathrooms 3133 V4 Drummond House Plans
Small Floor Plan For Affordable Home Construction
House Plan 582 Lauralynn Affordable House Plan





