Looking for the perfect 3 bedroom house plan for your dream home? You’re in luck! We’ve compiled the best options to suit your needs and preferences. Whether you’re a first-time homebuyer or looking to upgrade, we’ve got you covered.
From spacious layouts to modern designs, our top picks cater to various lifestyles and budgets. You’ll find everything from open-concept living areas to cozy private spaces. With these options, you can customize your home to fit your unique style and requirements.
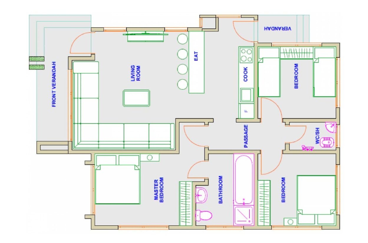
Best 3 Bedroom House Plan
Best 3 Bedroom House Plan
One of the top choices for a 3 bedroom house plan is a versatile layout that offers flexibility and functionality. With options for a home office, guest room, or extra storage space, this design allows you to make the most of every square foot.
Another popular option is a single-story layout that maximizes convenience and accessibility. Perfect for families with young children or individuals looking to age in place, this design prioritizes ease of living without sacrificing style or comfort.
For those who love to entertain, consider a 3 bedroom house plan with an open-concept kitchen and living area. This design creates a seamless flow between spaces, making it ideal for hosting gatherings and spending quality time with loved ones.
With the best 3 bedroom house plans, you can turn your vision of the perfect home into a reality. Explore our top picks and find the design that speaks to you. Your dream home is just a plan away!
Low Cost Simple 3 Bedroom House Plans In Kenya Aspax Construction Company
House Plan 3 Bedrooms 1 Bathrooms 90101 V2 Drummond House Plans
25 Three Bedroom House Apartment Floor Plans
3 Bedroom House Plan 1079 Sq Feet Or 100 M2 Private Bathroom To All Bedrooms Best Selling 3 Bedroom House Plans Etsy
3 Bedroom Apartment House Plans





