Looking for the perfect two-bedroom house plan for your family? You’ve come to the right place! A two-bedroom house plan is a popular choice for small families, couples, or individuals looking for a cozy and functional living space. Whether you’re building your first home or downsizing, a two-bedroom house plan can be the ideal solution.
With a two-bedroom house plan, you can enjoy the benefits of a comfortable living space without the added expense of extra rooms. These plans are designed to maximize space and efficiency, making them perfect for those who value simplicity and functionality. Plus, with two bedrooms, you have the flexibility to use the extra room as a home office, guest room, or playroom.
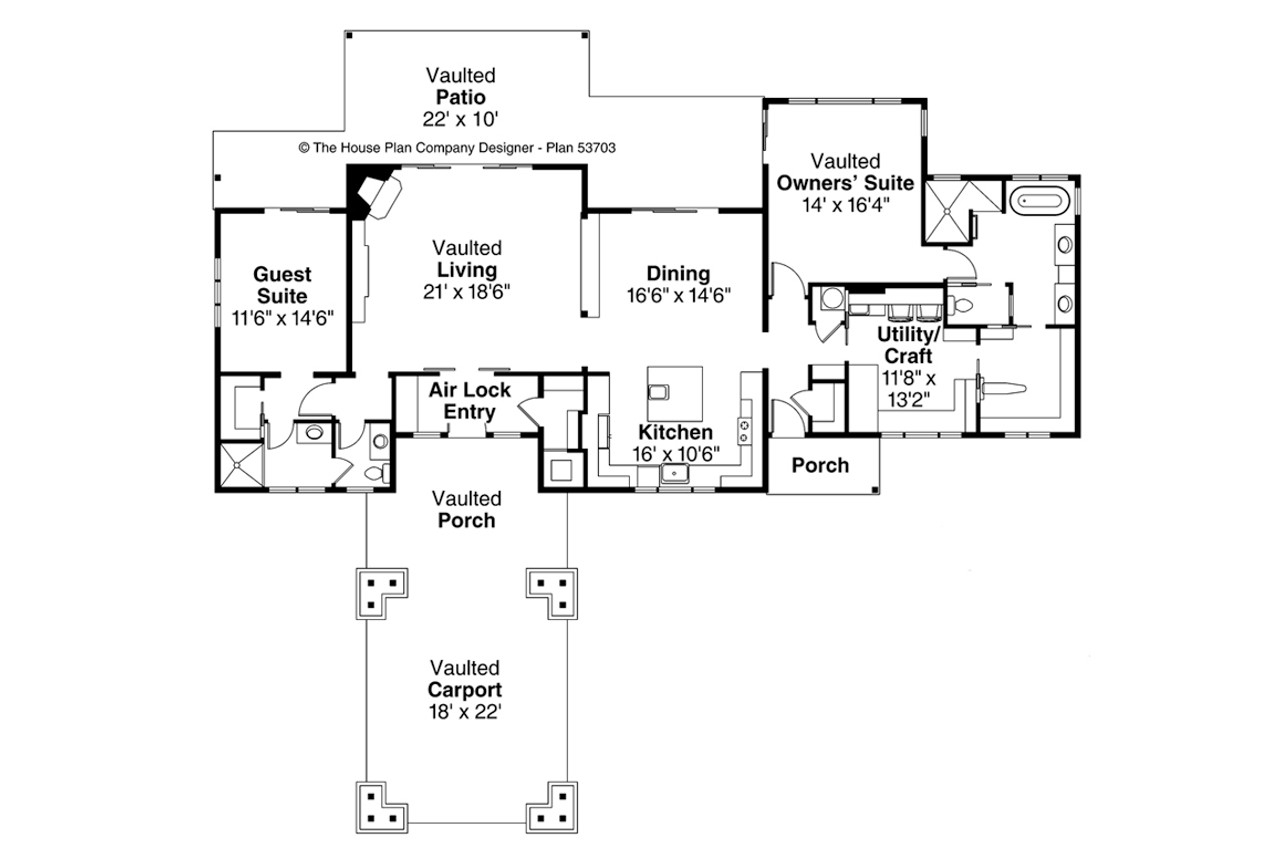
A Two Bedroom House Plan
A Two Bedroom House Plan
When choosing a two-bedroom house plan, consider factors such as layout, square footage, and architectural style. Whether you prefer a traditional bungalow, modern farmhouse, or sleek contemporary design, there are plenty of options to suit your taste and lifestyle. Look for plans that offer open-concept living areas, ample storage space, and a well-designed kitchen and bathroom.
Another benefit of a two-bedroom house plan is the potential for customization. Many plans can be modified to meet your specific needs and preferences, allowing you to create a home that truly reflects your personality and lifestyle. Whether you want to add a deck, expand the living room, or upgrade the finishes, a two-bedroom house plan offers endless possibilities for customization.
In conclusion, a two-bedroom house plan is a versatile and practical choice for anyone looking to build a comfortable and efficient home. With the right plan, you can create a space that meets your needs and suits your style. So why wait? Start exploring two-bedroom house plans today and turn your dream home into a reality!
2 Bedroom House Plans Truoba For Comfortable Living
Two Bedroom House Plans Gain Popularity As Homeowners Look To
2 Bedroom House Plans Family Home Plans
2 Bedroom Apartment House Plans
Plan 42922 Small Ranch Home Floor Plan With Two Bedrooms And Two Bathrooms





