Looking to build your dream home but working with limited space? Consider 700 sqft 2 bedroom house plans to maximize every inch of your property. These plans are perfect for small families, couples, or individuals looking for a cozy and functional living space.
With 700 sqft, you can design a compact yet comfortable home that meets all your needs. Whether you prefer an open-concept layout, a traditional design, or a modern aesthetic, there are endless possibilities to customize your space to suit your lifestyle.
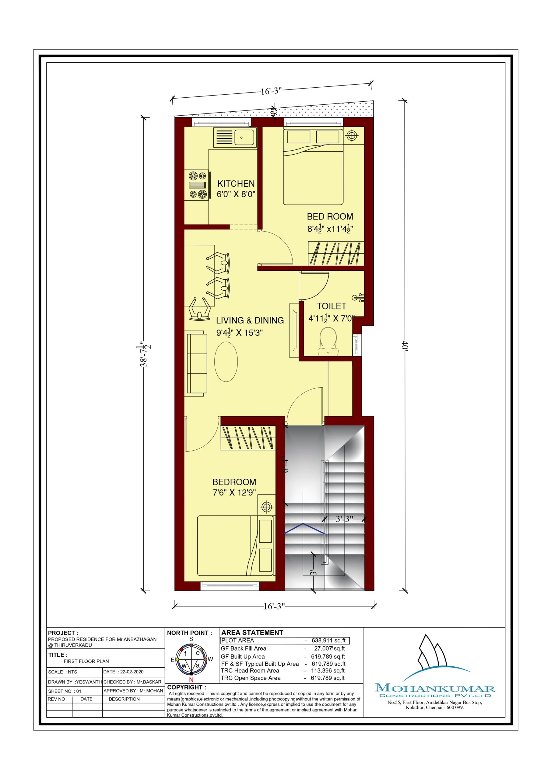
700 Sqft 2 Bedroom House Plans
Exploring 700 Sqft 2 Bedroom House Plans
One of the key benefits of opting for a 700 sqft 2 bedroom house plan is the flexibility it offers. You can use the second bedroom as a guest room, home office, nursery, or even a hobby space. The compact size also means lower maintenance costs and energy bills.
When designing your 700 sqft home, consider incorporating smart storage solutions, multi-functional furniture, and maximizing natural light to create a sense of spaciousness. With thoughtful planning and clever design choices, you can make the most of every square foot.
Whether you’re building a starter home, downsizing, or simply looking for a more manageable living space, 700 sqft 2 bedroom house plans are a practical and stylish option. Embrace the challenge of designing a small but mighty home that reflects your personality and meets your needs.
Ready to embark on your home-building journey? Explore the possibilities of 700 sqft 2 bedroom house plans and start envisioning your future home today!
Plan 82496 Charming Rustic Country Home Plan
700 Sq ft House Plan Mohankumar Construction Best House Design
House Plan 76966 Southern Style With 700 Sq Ft 1 Bed 1 Bath
Pioneer Plan 700 Square Feet
ADU Floor Plans 700 Sq Ft Long 2 Bedroom 1 Bath Design





