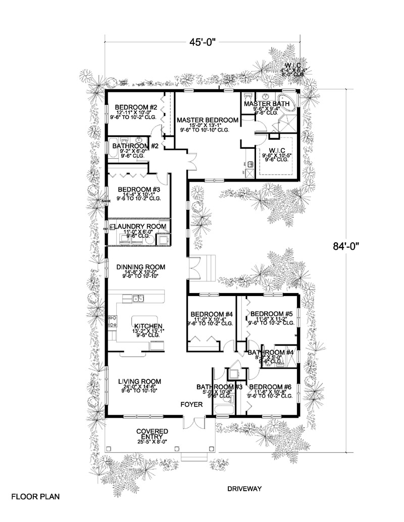
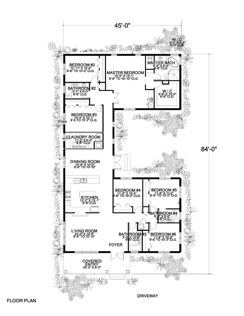
6 Bedroom House Plans One Story