If you’re dreaming of a spacious barn house with five bedrooms, you’re in luck! These versatile floor plans are perfect for families or anyone needing extra space. With plenty of room to spread out and relax, a 5 bedroom barn house is a great choice for those who value comfort and style.
From traditional designs to modern layouts, there are plenty of options to choose from when it comes to 5 bedroom barn house floor plans. Whether you prefer a rustic look or a more contemporary feel, there’s something for everyone. Let’s explore some popular floor plan options to help you find the perfect fit for your needs.
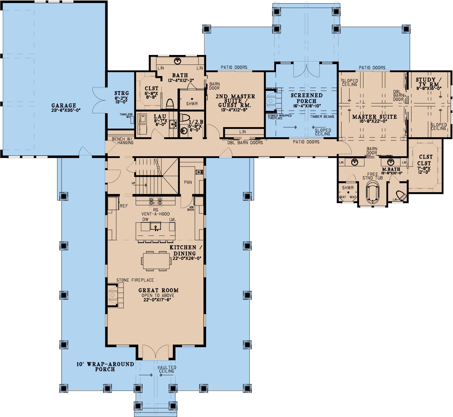
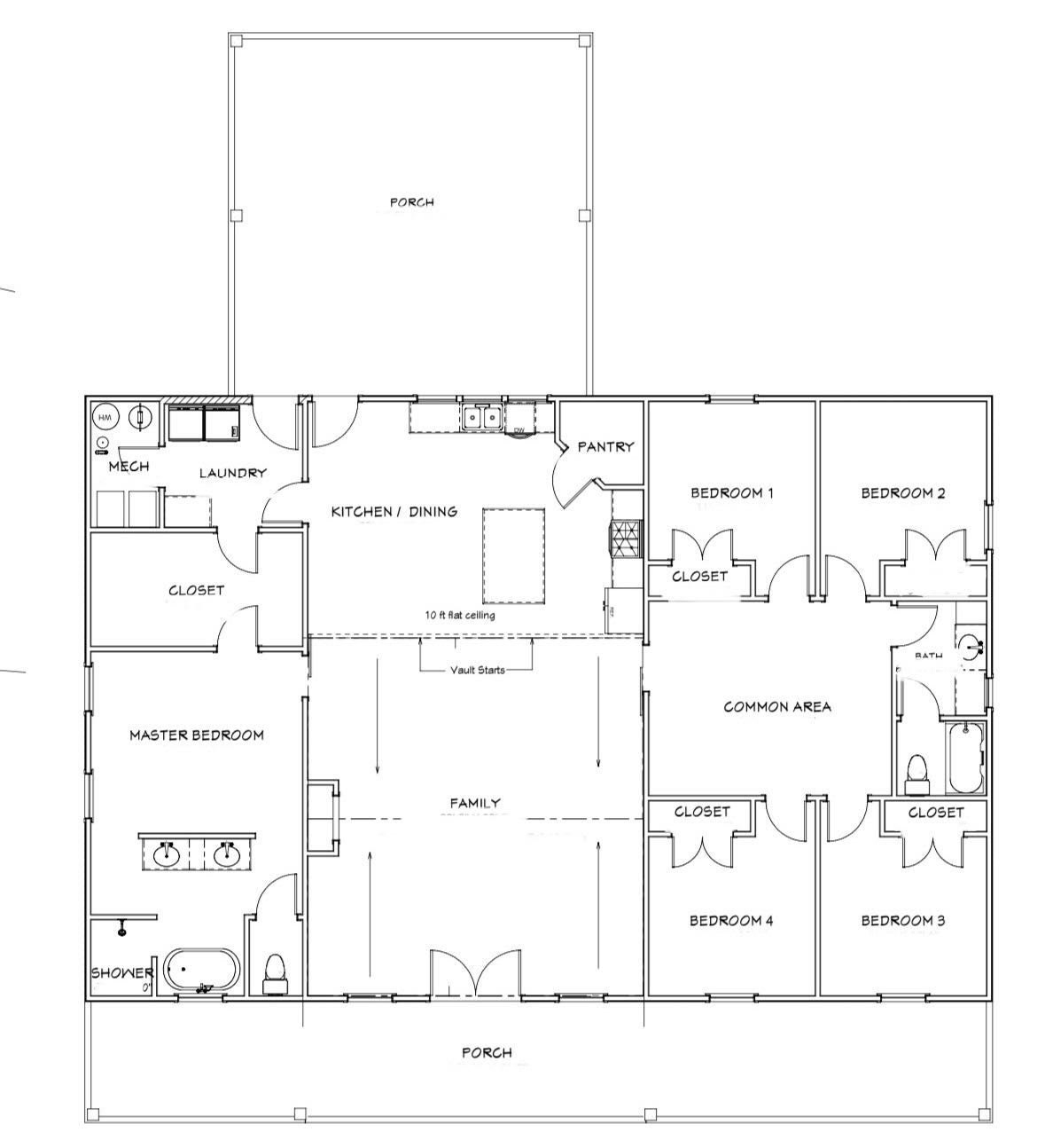
5 Bedroom Barn House Floor Plans
5 Bedroom Barn House Floor Plans
One popular option is a two-story barn house with the bedrooms located on the second floor. This layout provides privacy and separation from the main living areas, perfect for families with kids or guests. The open-concept first floor offers plenty of space for entertaining and relaxing.
For those who love the idea of a single-story home, a sprawling ranch-style barn house with five bedrooms might be the perfect choice. With a central living area and bedrooms located on either side, this layout offers convenience and functionality for everyday living.
No matter which floor plan you choose, a 5 bedroom barn house is sure to provide the space and comfort you need for your lifestyle. Whether you’re looking for a weekend retreat or a permanent residence, these versatile floor plans offer the perfect blend of style and functionality.
So, if you’re in the market for a spacious and stylish home, consider a 5 bedroom barn house with a floor plan that suits your needs. With plenty of options to choose from, you’re sure to find the perfect layout for your family’s lifestyle. Start exploring today and turn your dream home into a reality!
5 Bedroom Barndominiums
40×60 Barndominium 5 Bedroom PDF Blueprints And Framing Material List Etsy
Liberty 5 Bedroom Barndominium Floor Plan My Barndo Plans
5 Bedrooms Archives The Barndo Co
Plan 74635 New 5 Bedroom Barndominium House Plan Has 3410 Sq Ft





