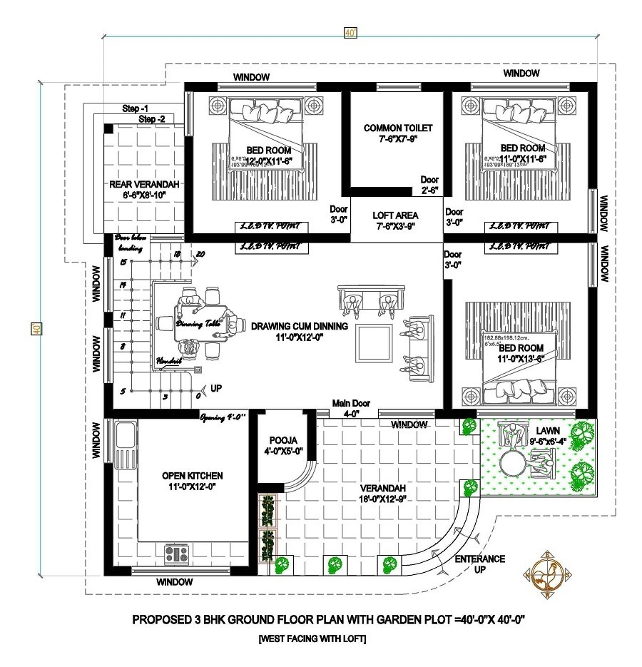
40×40 House Plans 2 Bedroom