If you’re in the market for a cozy and efficient home, 40’X40′ house plans with 2 bedrooms could be the perfect solution for you. These plans are designed to maximize space and functionality while still providing a comfortable living environment.
With two bedrooms, you’ll have plenty of room for yourself, a guest room, or even a home office. The open layout of these plans allows for easy flow between rooms, making the most of every square foot.
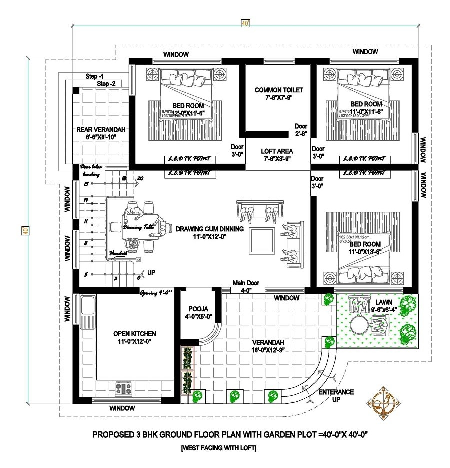
40’X40 House Plans 2 Bedroom
40’X40 House Plans 2 Bedroom
One of the great things about 40’X40′ house plans with 2 bedrooms is the flexibility they offer. You can customize the layout to suit your lifestyle, whether you prefer an open concept design or more defined spaces.
These plans are also ideal for those looking to downsize without sacrificing comfort. With efficient use of space, you can enjoy all the amenities of a larger home in a more manageable size.
Whether you’re a first-time homebuyer, empty nester, or looking for a vacation retreat, 40’X40′ house plans with 2 bedrooms offer a practical and stylish solution. Say goodbye to wasted space and hello to a home that fits your needs perfectly.
So, if you’re ready to embrace a simpler way of living without compromising on style or comfort, consider exploring 40’X40′ house plans with 2 bedrooms. You’ll be amazed at how much functionality and charm can fit into a compact footprint.
40X40 House Design Option 2 DV Studio
40 X 40 Sqft House Plan With Car Parking Design DWG File Cadbull
40×40 House Plans Indian Floor Plans
40 X 40 HOUSE PLAN II 40 X 40 FEET HOUSE PLAN II 3BHK II PLAN 102
40×40 Shop House Building Kit Packages For Sale





