Looking for the perfect three-bedroom house plan for your family? You’re in luck! We have a variety of 40×35 three-bedroom house plans that are sure to meet your needs.
Whether you’re looking for a cozy cottage or a spacious family home, our collection of 40×35 three-bedroom house plans has something for everyone. From open-concept layouts to traditional designs, we have options to suit every style and budget.
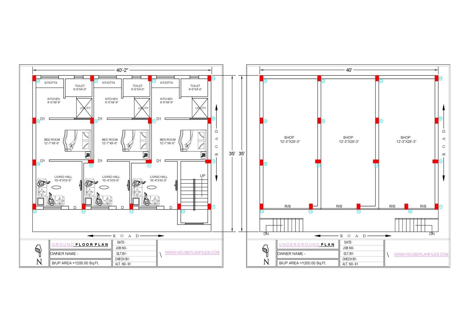
40x 35 Three Bedroom House Plans
Discover the Perfect 40×35 Three Bedroom House Plans
Our 40×35 three-bedroom house plans are designed with functionality and comfort in mind. With spacious bedrooms, modern kitchens, and inviting living areas, these plans are perfect for families of all sizes.
Want a home office or a dedicated playroom? No problem! Many of our 40×35 three-bedroom house plans include flexible spaces that can be customized to suit your needs.
Ready to find your dream home? Browse our collection of 40×35 three-bedroom house plans today and start envisioning your future in a beautiful new space that’s perfect for you and your family.
Don’t wait any longer to find the perfect three-bedroom house plan for your family. With our selection of 40×35 three-bedroom house plans, you’re sure to find the ideal design that meets all your needs and exceeds your expectations. Start planning your dream home today!
35 By 40 House Plan 35 40 House Plan South Face 3bhk Plan
40 35 House Plan East Facing 3bhk House Plan 3D Elevation House Plans
40×35 House Plans 3BHK 40 35 House Plan 3d HOUZY IN
40×35 Affordable House Design
35X40 Affordable House Design DK Home DesignX





