Looking for the perfect single-level house plan for your family? 4 bedroom single level house plans offer spacious living areas and convenient layouts for comfortable living. These designs are ideal for families of all sizes, providing ample space and flexibility.
With 4 bedrooms, you’ll have plenty of room for your family members or guests. Whether you’re looking for a cozy bungalow or a modern ranch-style home, there are various options available to suit your preferences and lifestyle.
4 Bedroom Single Level House Plans
4 Bedroom Single Level House Plans
One of the advantages of single-level living is the ease of accessibility for people of all ages. From young children to seniors, a 4 bedroom single level house plan offers convenience and functionality without the need to navigate stairs.
These house plans typically feature open floor plans, making it easy to move between the kitchen, living room, and dining area. This layout is perfect for families who enjoy spending time together and hosting gatherings with friends and loved ones.
Additionally, 4 bedroom single level house plans often include outdoor living spaces such as patios or decks, providing opportunities for relaxation and enjoyment of the outdoors. You can create a backyard oasis or a cozy front porch to enhance your home’s curb appeal.
Consider the benefits of 4 bedroom single level house plans when choosing your next home design. With spacious layouts, convenient accessibility, and versatile living spaces, these plans offer the perfect combination of comfort and functionality for your family.
Plan 45467 4 Bedroom Classic Ranch House Plan With Covered Porc
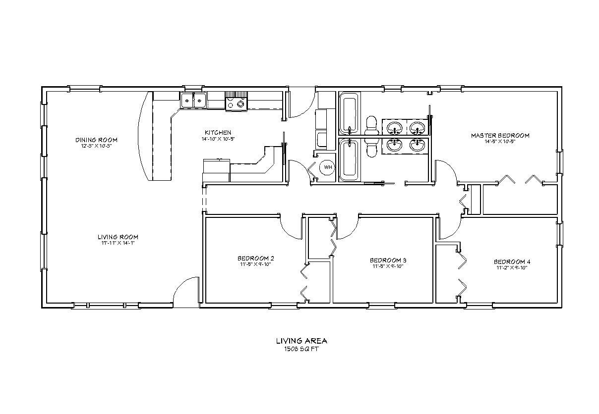
4 Bedroom 2 Bath Ranch Style Architectural Plans 1508 SF 60 x25 One Story House Plans Compact Family Floor Plan Digital Blueprint PDF Etsy
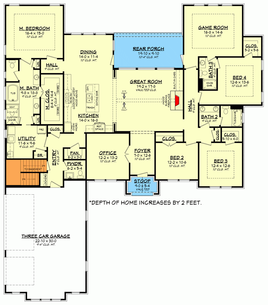
HOUSE PLAN 201024 Single Story House 4 Bedrooms 2 5 Bathrooms Pdf Floor Plan Instant Download CUSTOM Plans Service Etsy
Madera House Plan 4 Bedroom Ranch Home Design MF 2762
4 Bedroom House Single Storey House Plans





