If you’re in the market for a new home, consider the charm and character of a 4 bedroom saltbox house. These classic homes offer a timeless appeal and plenty of space for your family to grow and thrive.
With their distinctive sloping roof and colonial-inspired design, saltbox houses are a popular choice for homeowners looking for a blend of traditional style and modern convenience. The 4 bedroom layout provides ample room for your family to spread out and enjoy.
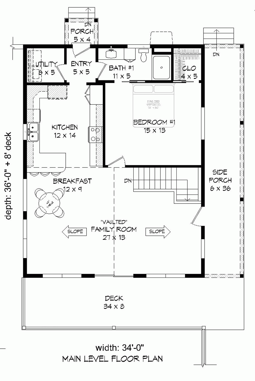
4 Bedroom Saltbox House Plans
4 Bedroom Saltbox House Plans
When searching for the perfect 4 bedroom saltbox house plan, consider factors such as layout, square footage, and architectural style. Look for plans that offer a balance of open living spaces and private bedrooms to suit your family’s needs.
Many saltbox house plans feature spacious kitchens, cozy living areas, and comfortable bedrooms, making them ideal for family living. With their timeless design and practical layouts, these homes offer a warm and inviting atmosphere for you and your loved ones.
Whether you’re building a new home or renovating an existing property, 4 bedroom saltbox house plans are a versatile and charming option. Consider the unique features of these homes and how they can enhance your family’s lifestyle for years to come.
Embrace the classic appeal of a 4 bedroom saltbox house and create a warm and welcoming home for your family. With their timeless design and practical layout, these homes offer a perfect blend of traditional charm and modern comfort. Start exploring saltbox house plans today and find the perfect design for your family’s needs.
Salt Box House Plan 8404 SB Home Designing Service Ltd
Salt Box Plan 7691 SB L Home Designing Service Ltd
Saltbox Style House Plans U0026 Floor Plans
Small Saltbox House Plans
Saltbox Style House Plans U0026 Floor Plans





