If you’re in the market for a new home, consider a 4 bedroom ranch house plan. This type of layout offers spacious living areas and a convenient single-story design.
With four bedrooms, you’ll have plenty of space for your family or guests. The open floor plan allows for easy flow between the kitchen, living room, and dining area, perfect for entertaining.
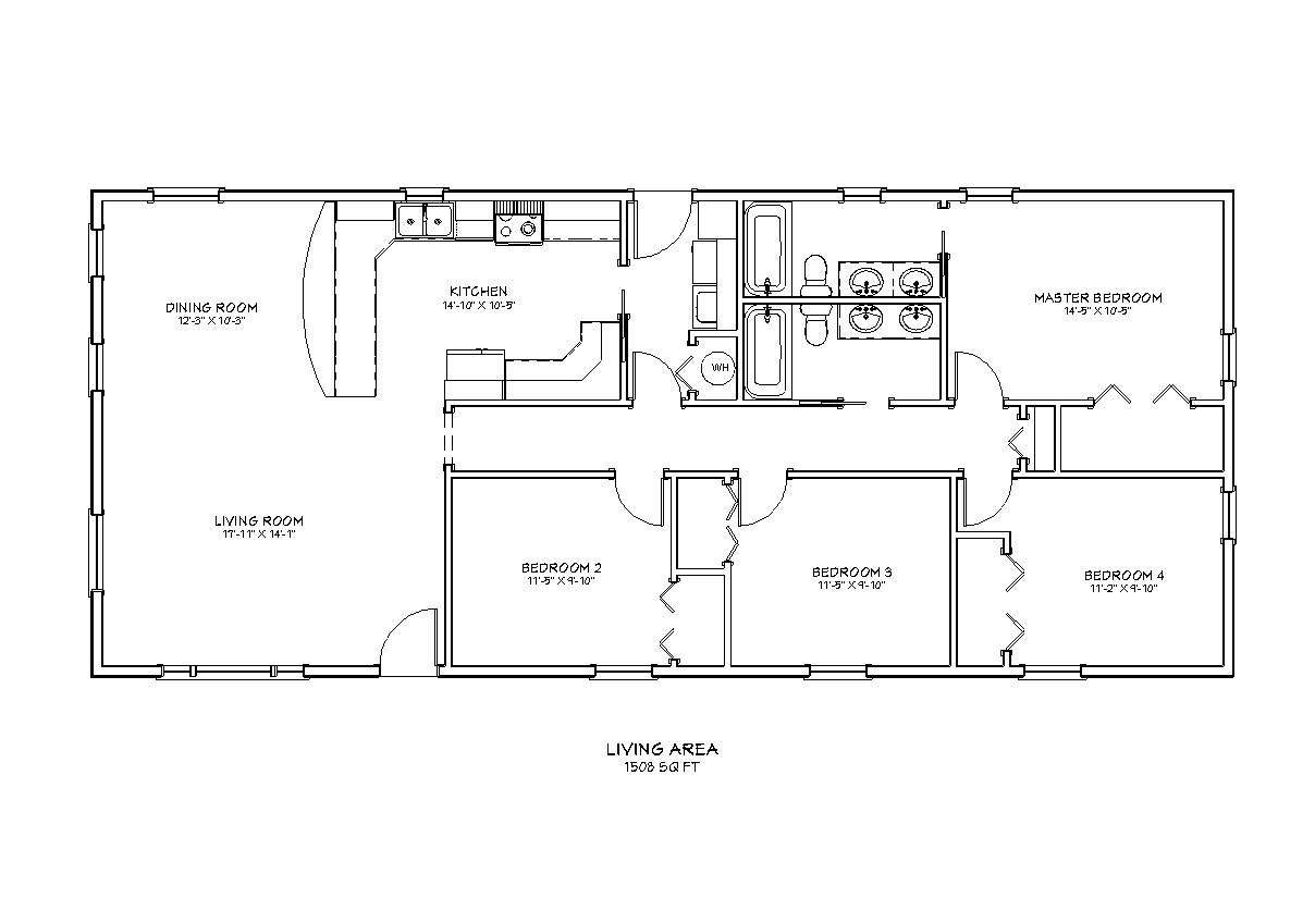
4 Bedroom Ranch House Plan
Benefits of a 4 Bedroom Ranch House Plan
One of the main advantages of a ranch-style home is the ease of accessibility. With everything on one level, there are no stairs to navigate, making it ideal for individuals with mobility issues or those who prefer single-story living.
Additionally, ranch homes typically have large windows that let in plenty of natural light, creating a bright and airy atmosphere. The spacious backyard is perfect for outdoor activities and gardening, providing a peaceful retreat from the hustle and bustle of everyday life.
Whether you’re a first-time homebuyer or looking to downsize, a 4 bedroom ranch house plan offers the perfect combination of comfort, convenience, and style. Consider this versatile layout for your next home and enjoy the benefits of single-story living.
Overall, a 4 bedroom ranch house plan is a practical and stylish choice for anyone looking for a spacious and comfortable home. With its convenient layout and modern design features, this type of home is sure to meet your needs and exceed your expectations.
Plan 45467 4 Bedroom Classic Ranch House Plan With Covered Porc
Plan 42697 4 Bedroom Ranch Style House Plan
Madera House Plan 4 Bedroom Ranch Home Design MF 2762
4 Bedroom 2 Bath Ranch Style Architectural Plans 1508 SF 60 x25 One Story House Plans Compact Family Floor Plan Digital Blueprint PDF Etsy
Plan 41318 Ranch Style With 4 Bed 3 Bath 3 Car Garage





