Looking for the perfect 4 bedroom house plans in Rockhampton? You’ve come to the right place! Whether you’re building your dream home or looking to renovate, having a solid plan is key to creating a space that suits your needs and lifestyle.
With a variety of options available, it can be overwhelming to choose the right design for your family. From spacious layouts to modern finishes, finding the perfect 4 bedroom house plan in Rockhampton is essential to creating a home that you’ll love for years to come.
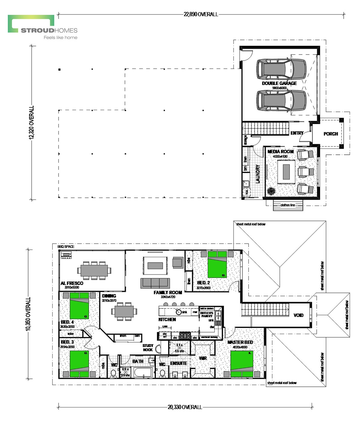
4 Bedroom House Plans Rockhampton
4 Bedroom House Plans Rockhampton: Finding the Perfect Design
When selecting a 4 bedroom house plan in Rockhampton, consider factors such as the size of your family, your lifestyle, and your budget. Whether you prefer open-plan living or traditional layouts, there are plenty of options to choose from that will suit your needs.
From single-story to multi-level designs, there are 4 bedroom house plans in Rockhampton to suit every taste and style. Whether you’re looking for a contemporary design or a more traditional layout, finding the right plan is essential to creating a home that you’ll love.
So, if you’re in the market for a 4 bedroom house plan in Rockhampton, take the time to explore your options and find a design that suits your needs. With the right plan in place, you’ll be well on your way to creating the home of your dreams.
4 Bedroom Home Plans Richard Adams Homes
4 Bedroom Home Plans Richard Adams Homes
Rockhampton 4 Bedroom Home With Home Theatre Endeavour Homes
Clare 256 Sloped Block Home Design Stroudhomes au
4 Bedroom Home Plans Richard Adams Homes





