Are you in the market for a new home and looking for 4 bedroom house plans in a ranch style? Look no further! Ranch-style homes are known for their spacious layouts and single-story designs, making them a popular choice for families of all sizes.
With 4 bedrooms, you’ll have plenty of room for your family to grow and thrive. Whether you need extra space for guests, a home office, or a playroom for the kids, a ranch-style house plan with 4 bedrooms has you covered.
4 Bedroom House Plans Ranch Style
4 Bedroom House Plans Ranch Style
These house plans typically feature open floor plans, large windows that let in plenty of natural light, and outdoor living spaces like patios or porches. With a ranch-style home, you can enjoy a seamless flow between indoor and outdoor living, perfect for entertaining or simply relaxing with your loved ones.
Another benefit of ranch-style house plans is their versatility. Whether you prefer a traditional farmhouse look or a more modern design, there are plenty of options to choose from to suit your style and preferences.
So, if you’re dreaming of a spacious and comfortable home with 4 bedrooms in a ranch style, consider exploring the many house plans available. From classic to contemporary, there’s sure to be a plan that meets your needs and brings your vision to life.
Start your search today and find the perfect 4 bedroom house plan in a ranch style that will become your dream home for years to come.
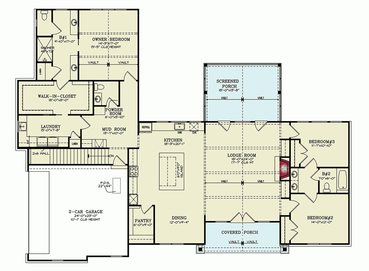
Plan 41468 Country Ranch Style Home Plan With Master Closet Con
Plan 68607VR 4 Bed Ranch Home Plan With Open Concept Living
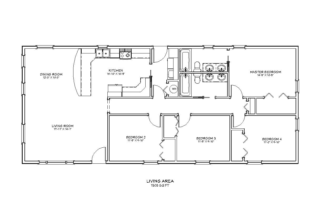
4 Bedroom 2 Bath Ranch Style Architectural Plans 1508 SF 60 x25
Plan 42697 4 Bedroom Ranch Style House Plan
Plan 41318 Ranch Style With 4 Bed 3 Bath 3 Car Garage





