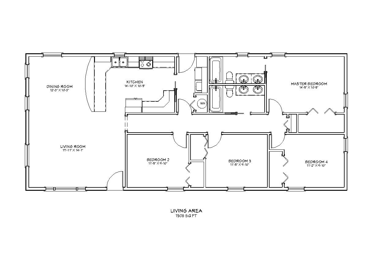
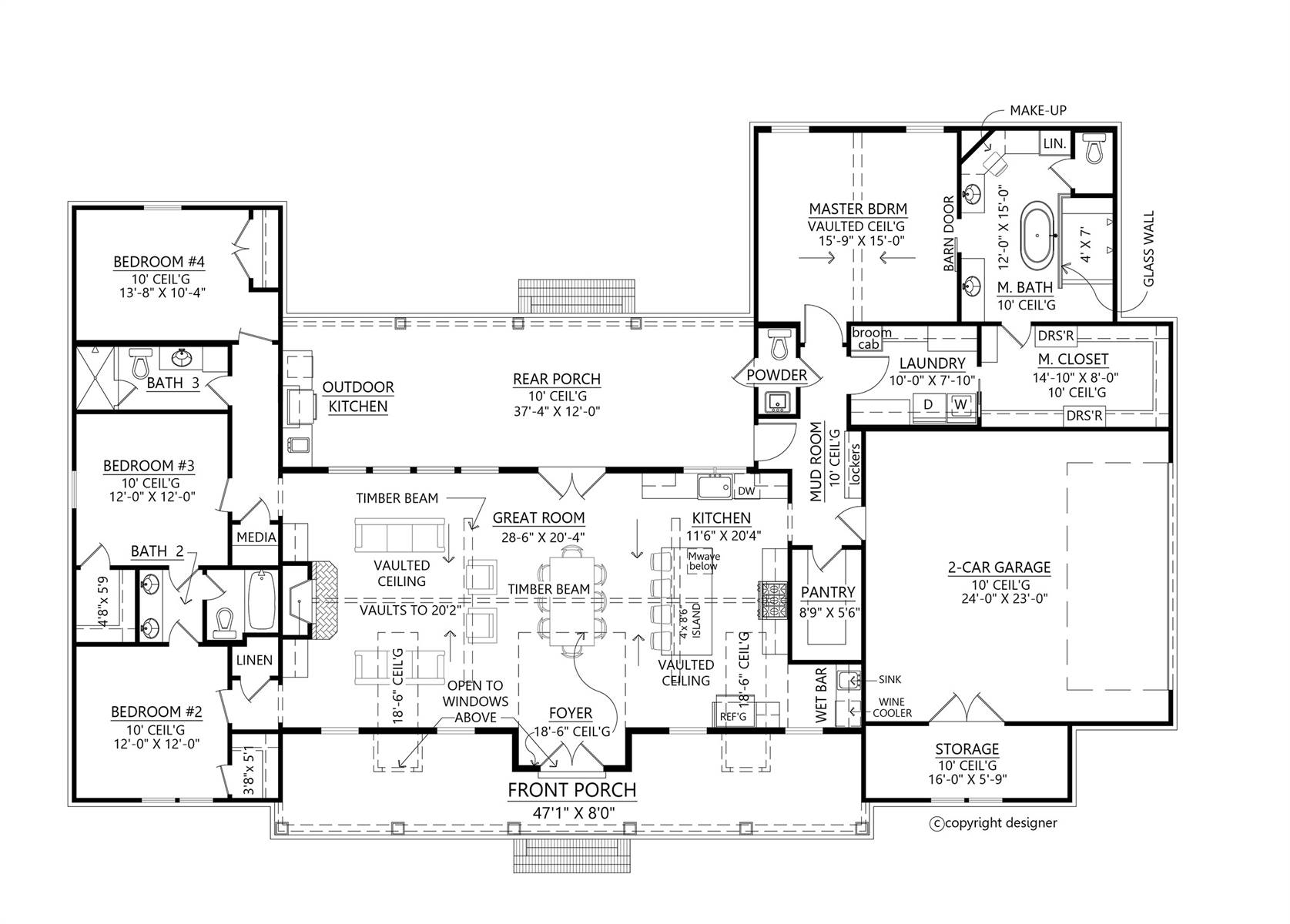
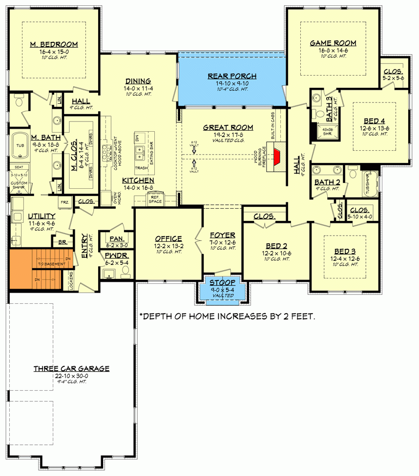
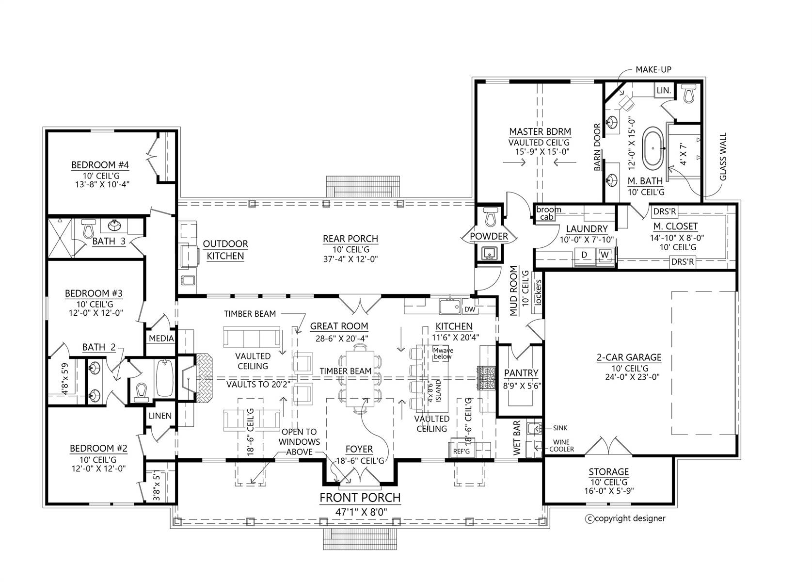
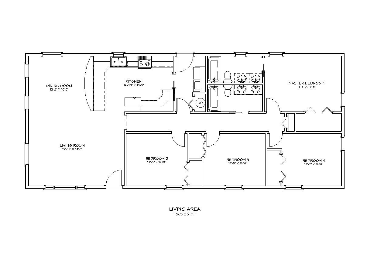
4 Bedroom House Plans One Level