Thinking about building your dream home in New Zealand? If you’re looking for spacious living, 4 bedroom house plans in NZ might be just what you need. These plans offer plenty of room for families, guests, or even a home office.
With a range of styles and layouts available, you can find 4 bedroom house plans in NZ that suit your needs and budget. Whether you prefer a modern design or a more traditional look, there are options to suit every taste.
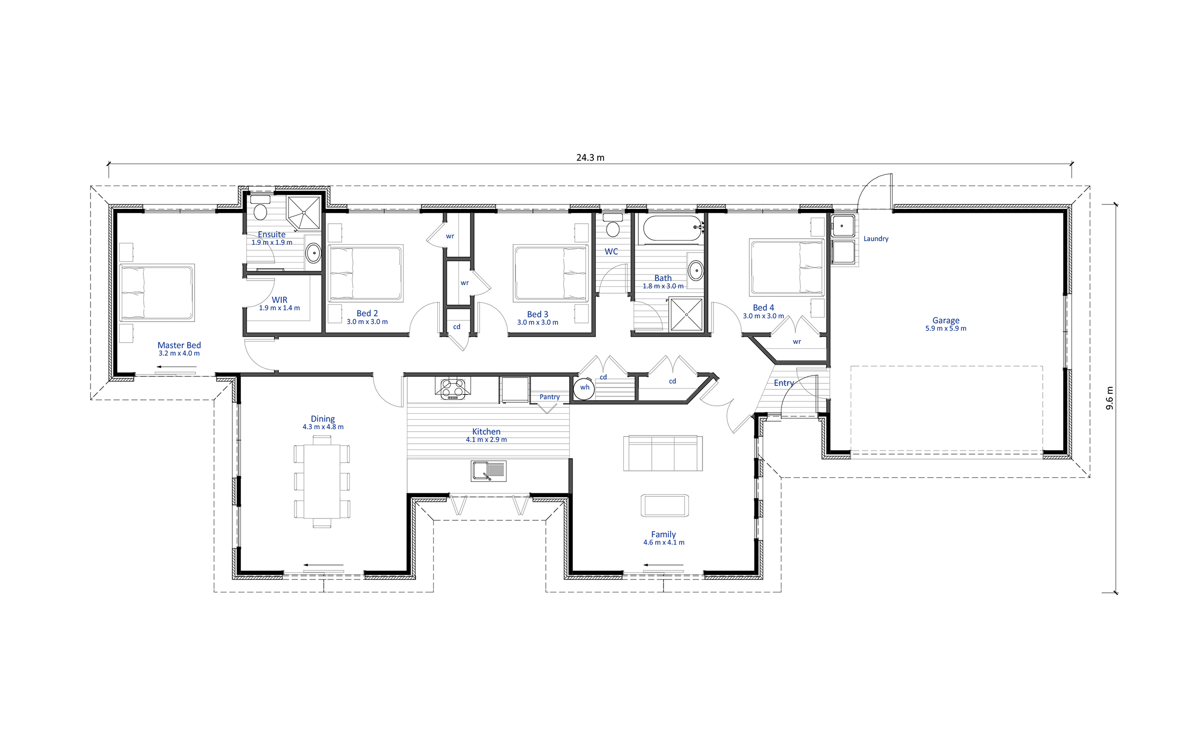
4 Bedroom House Plans Nz
Discover the Perfect 4 Bedroom House Plans NZ
When choosing 4 bedroom house plans in NZ, consider factors such as the size of your lot, desired number of bathrooms, and any special features you want, like a deck or spacious kitchen. Look for plans that offer the space and functionality you need.
Many 4 bedroom house plans in NZ feature open-plan living areas, perfect for entertaining or relaxing with family. You can also find plans with master suites, walk-in closets, and other amenities to make your home comfortable and convenient.
Whether you’re building a new home or renovating an existing one, 4 bedroom house plans in NZ offer versatility and value. With plenty of options to choose from, you can create a home that suits your lifestyle and reflects your personal style.
Explore the possibilities with 4 bedroom house plans in NZ and start planning your dream home today!
Watea 4 Bedroom House Plan Opito Bay Lot 7 Watea Bay Of Islands
Roa House Plan 4 Bedroom Single Level House 143m2
Polo 4 Bedroom Plan Christchurch Builders Orange Homes
Four Bedroom Plans Johnston Builders
Wairakei 4 Bedroom House Plan Double Garage Latitude Homes





