If you’re in the market for a new home and looking for spacious living, consider checking out 4 bedroom house plans L shaped. These designs offer ample room for a growing family or hosting guests.
With an L-shaped layout, these house plans provide a unique and functional flow, allowing for privacy in the bedrooms while still offering open living spaces for gathering and entertaining.
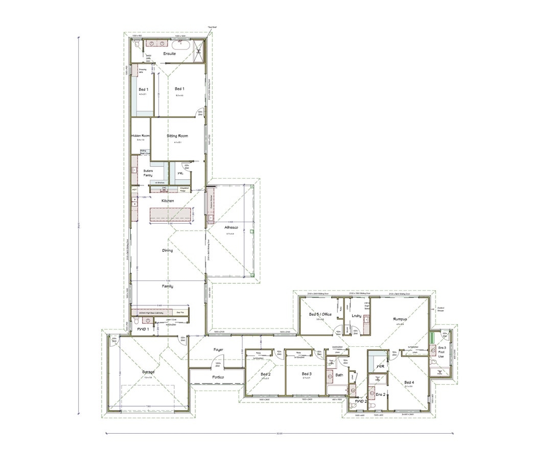
4 Bedroom House Plans L Shaped
Benefits of 4 Bedroom House Plans L Shaped
One of the main advantages of choosing an L-shaped house plan is the ability to create separate zones within the home. This layout allows for distinct areas for sleeping, working, and relaxing, providing a sense of privacy and organization.
Additionally, the L-shaped design allows for plenty of natural light to flow into the living spaces, creating a bright and welcoming atmosphere. The layout also offers opportunities for outdoor living, with the potential for a courtyard or patio off the main living area.
When considering 4 bedroom house plans L shaped, think about the flexibility this layout provides. Whether you need a home office, a playroom for the kids, or a guest suite, the L-shaped design can accommodate a variety of needs and preferences.
In conclusion, if you’re looking for a spacious and versatile home design, 4 bedroom house plans L shaped could be the perfect option for you. With separate living zones, natural light, and flexibility in layout, these designs offer a unique and functional living experience.
Plan 865000SHW L Shaped Modern Farmhouse With Vaulted Great Room And Master Suite
Blackhorse 4 House Plan Two Story L Shaped Home Design
L Shaped Home Courtyard Home Villa Resort Style House Plan Hidden Room Etsy
4 Bedroom Tiny House Floor Plans 1 000 Sq Ft L shaped Design
Denim House Plan Four Bedroom L Shaped Rustic Farmhouse Home





