Are you looking for the perfect 4 bedroom house plans for your new home? Look no further! Double story house plans are a great option for maximizing space and creating a functional layout for your family.
With 4 bedrooms, you’ll have plenty of room for the whole family, guests, or even a home office. Double story designs offer a great balance between privacy and social spaces, making them ideal for growing families.
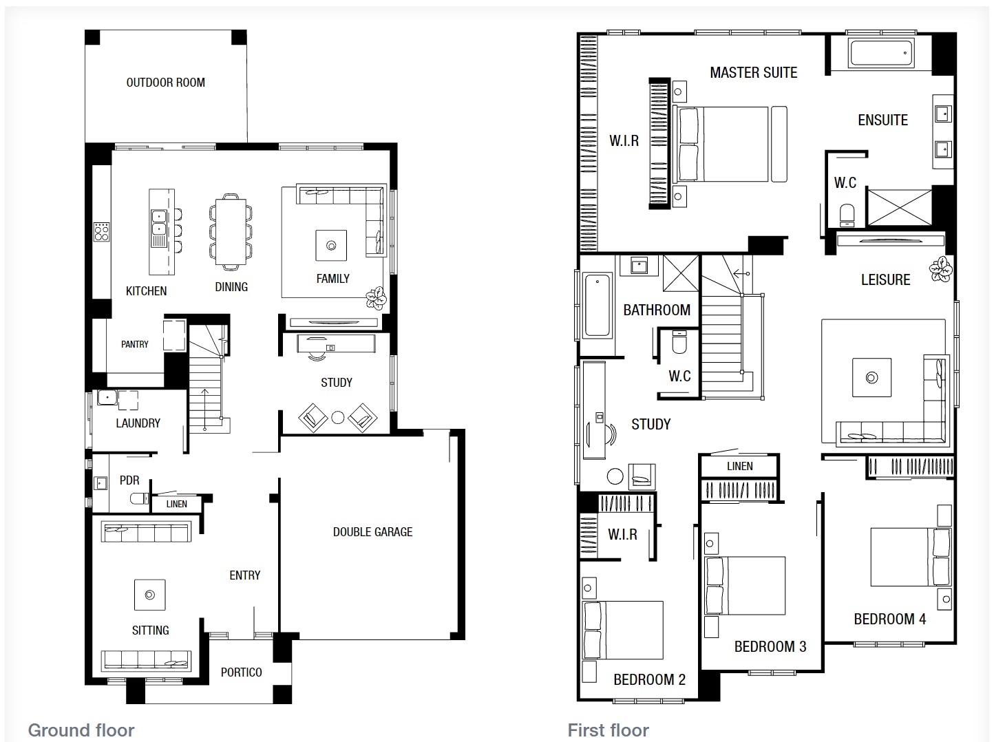
4 Bedroom House Plans Double Story
4 Bedroom House Plans Double Story
Double story house plans with 4 bedrooms typically feature a master suite on the upper level for added privacy and relaxation. The lower level often includes the remaining bedrooms, living spaces, and kitchen, creating a seamless flow throughout the home.
These designs are perfect for families who want to have separate zones for sleeping and living, as well as those who enjoy entertaining guests. The additional space allows for flexibility in layout and design, making it easy to customize to your needs.
Whether you’re looking for a traditional or modern design, double story 4 bedroom house plans offer a variety of options to suit your style and preferences. From open-concept layouts to more formal designs, there’s something for everyone in this versatile category.
So, if you’re in the market for a new home and need plenty of space for your family, consider exploring double story 4 bedroom house plans. With their functional layouts and ample room for everyone, these designs are sure to meet your needs and exceed your expectations.
4 Bedroom Floor Plans Buildi
Modern Two Story House Design 4 Bedroom Floor Plan Nethouseplans
4 Bedroom Double Story House Plan Four Rooms
Two Story 4 Bedroom Contemporary Style House Plan 9762 Plan 9762
4 Bedroom 2 Storey House Plans 25 Display Homes In NSW





