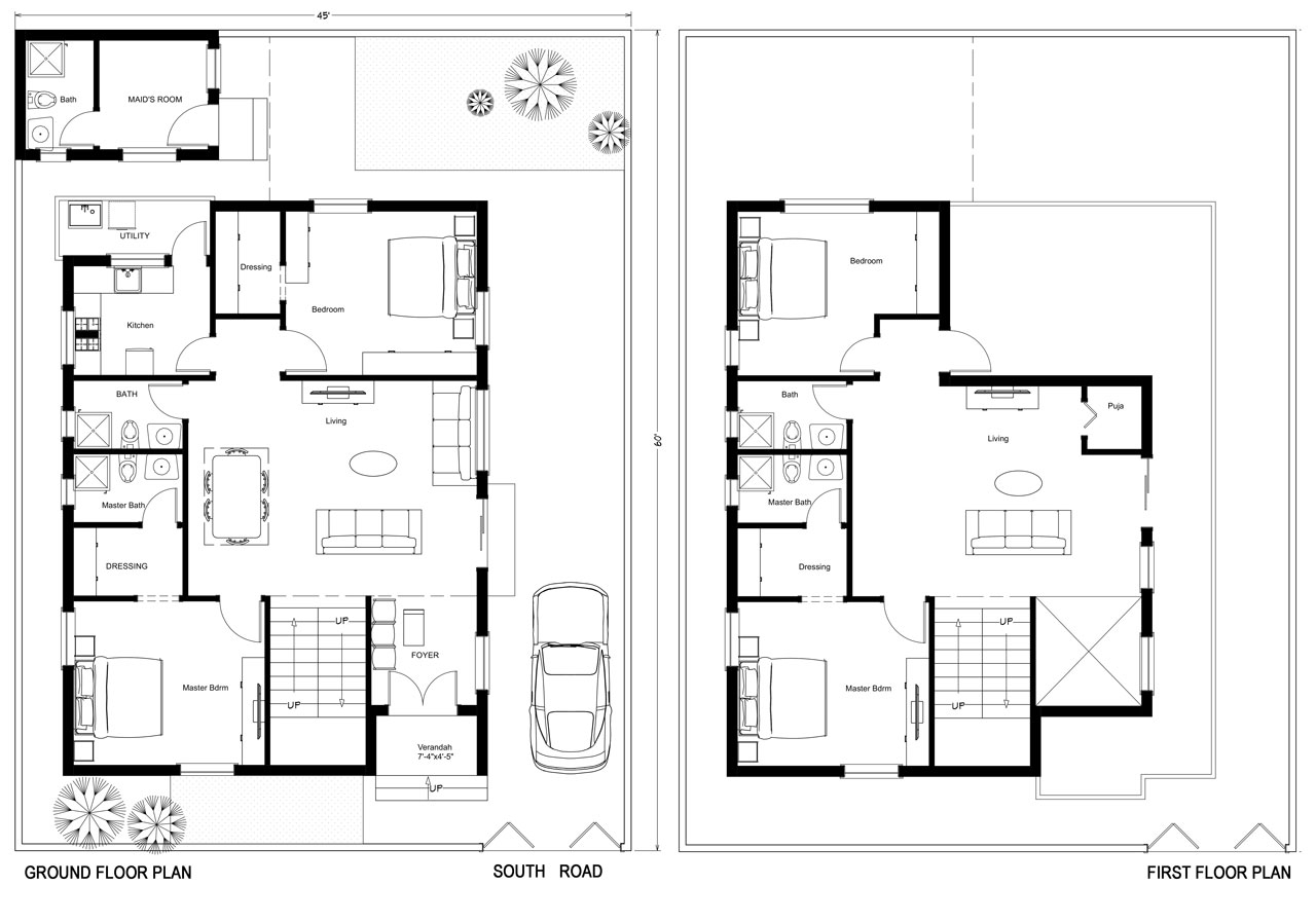
Are you looking for 4 bedroom house plans in Autocad format? Look no further! Autocad is a popular software used by architects and designers to create detailed floor plans and blueprints. With 4 bedroom house plans in Autocad, you can easily visualize the layout of your dream home.
Whether you’re building a new home or renovating an existing one, having accurate and detailed house plans is essential. Autocad makes it easy to create and modify floor plans, ensuring that your home is designed exactly to your specifications. With 4 bedrooms, you’ll have plenty of space for your family and guests.
4 Bedroom House Plans Autocad
4 Bedroom House Plans Autocad
When it comes to 4 bedroom house plans in Autocad, there are endless possibilities. From traditional layouts to modern designs, you can find a plan that suits your style and needs. With Autocad, you can easily customize the plans to fit your lot size and preferences.
Having a 4 bedroom house plan in Autocad format also makes it easy to work with contractors and builders. You can easily share the plans electronically, reducing the chances of miscommunication and errors during construction. This can save you time and money in the long run.
So if you’re in the market for 4 bedroom house plans in Autocad, look no further. With the help of Autocad software, you can bring your dream home to life with detailed and accurate floor plans. Start planning your dream home today!
Free House Plan PDF U0026 DWG 13033 AfroHousePlans
Draw 2d Floor Plan House Plan In Autocad By Imdadulrimon Fiverr
Simple Two Story House Floor Plan AutoCAD U0026 PDF Download
Customized AutoCAD G FF 5 Bedroom House Plan
4 Bedroom House Plans Houzone





