Are you looking for 4 bedroom house plans in Adelaide? You’ve come to the right place! Adelaide offers a diverse range of architectural styles, from modern to traditional, making it easy to find the perfect plan for your dream home.
Whether you’re looking for a spacious family home or a cozy retreat, 4 bedroom house plans in Adelaide can cater to your needs. With ample space for bedrooms, living areas, and outdoor entertainment, these plans are designed to make the most of your property.
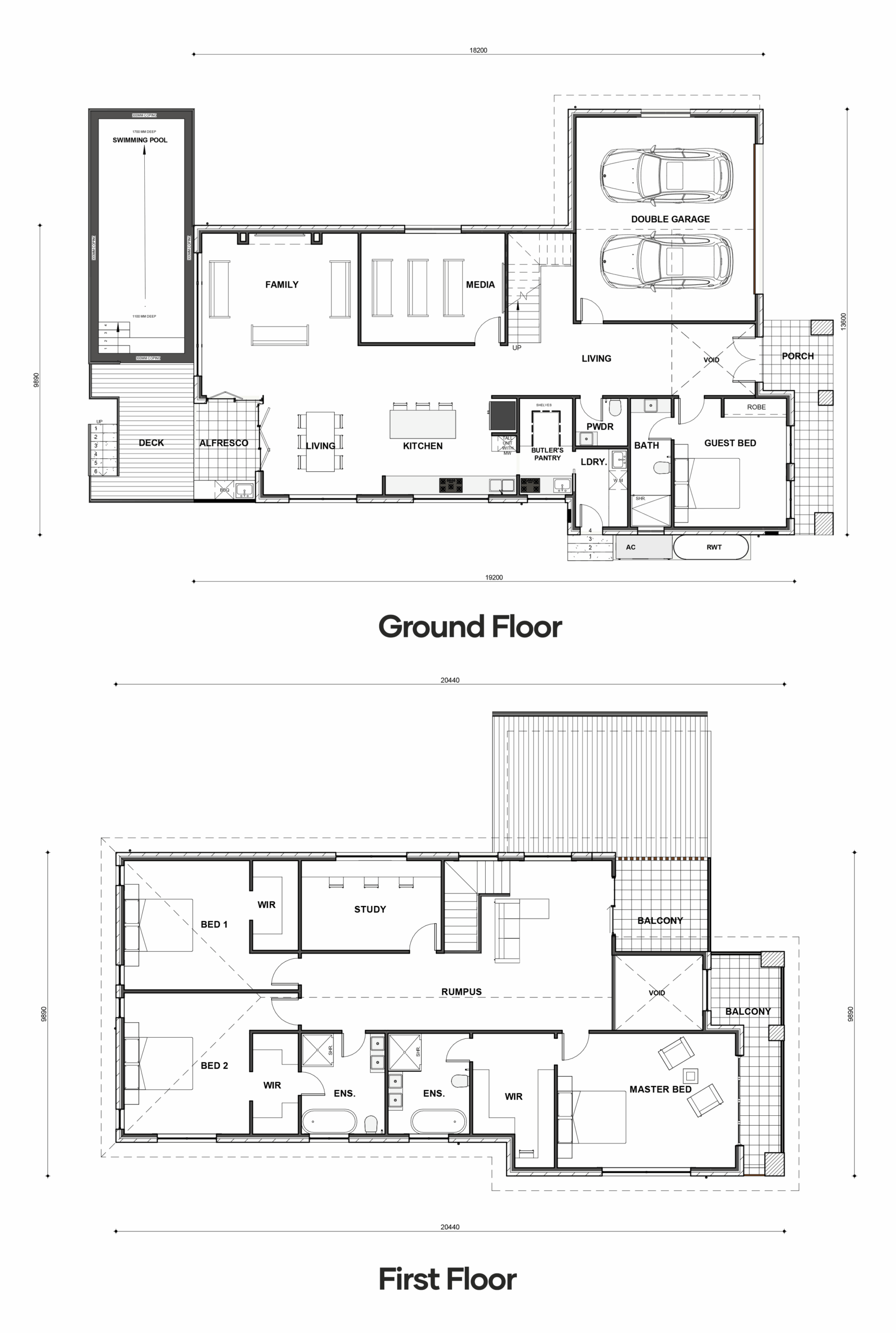
4 Bedroom House Plans Adelaide
Exploring 4 Bedroom House Plans Adelaide
One popular option is the open-plan design, perfect for families who love to entertain. With a seamless flow between the kitchen, dining, and living areas, this layout creates a welcoming and sociable atmosphere for gatherings with friends and family.
If you prefer a more traditional layout, Adelaide offers plenty of options with separate living spaces for added privacy. From formal lounge rooms to cozy reading nooks, these plans cater to those who value a sense of seclusion and relaxation in their home.
When it comes to outdoor living, 4 bedroom house plans in Adelaide often feature spacious alfresco areas, perfect for enjoying the beautiful Australian weather. Whether you prefer a covered patio for year-round use or a deck for soaking up the sun, these plans have you covered.
So, if you’re in the market for 4 bedroom house plans in Adelaide, look no further! With a variety of styles and layouts to choose from, you’re sure to find the perfect plan to suit your lifestyle and budget. Start your search today and turn your dream home into a reality!
4 Bedroom Home Designs Turn Your Dreams Into Reality Weeks Homes
House Designs Innovative And Stylish Homes By Stop Renting Australia
Horizon Dechellis Homes
4 Bedroom Archives Sarah Homes
4 Bedroom House Plans





