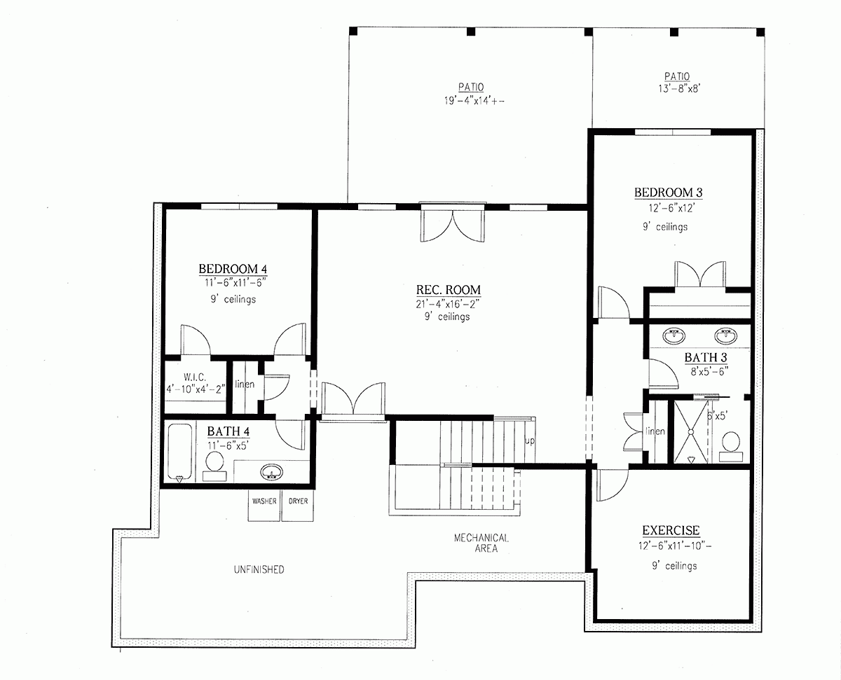
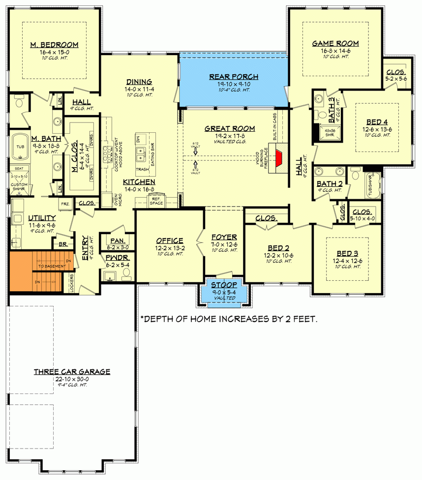
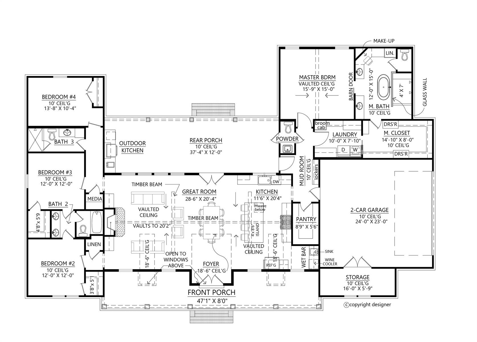
Looking for the perfect home design that combines space, comfort, and style? Consider a 4 bedroom house plan one story for your dream home. This layout offers convenience and functionality for families of all sizes.
With all bedrooms on the same level, a one-story 4 bedroom house plan provides easy access for everyone in the household. No more navigating stairs or worrying about young children or elderly family members. This design promotes a seamless flow throughout the entire home.
4 Bedroom House Plan One Story
4 Bedroom House Plan One Story: Features and Benefits
Imagine the convenience of having all your living spaces on one level. From the cozy bedrooms to the spacious living areas, a one-story 4 bedroom house plan maximizes efficiency while maintaining a sense of openness and comfort. This layout is perfect for entertaining guests or simply relaxing with your loved ones.
Furthermore, a single-story layout minimizes the need for unnecessary hallways or wasted space. Each room is strategically placed to optimize functionality and create a harmonious living environment. This design not only enhances the overall aesthetic of the home but also improves the overall flow and functionality of the space.
Whether you’re looking to build your forever home or simply want a practical yet stylish living space, a 4 bedroom house plan one story is a versatile option that caters to a wide range of needs and preferences. Say goodbye to the hassle of stairs and embrace the simplicity and convenience of single-story living.
Make your dream home a reality with a 4 bedroom house plan one story that combines comfort, functionality, and style in one cohesive design. Experience the ease and convenience of single-story living while enjoying the spaciousness and comfort of a well-designed home.
4 Bedroom House Plans Truoba Architect
Madera House Plan 4 Bedroom Ranch Home Design MF 2762
One Story Living 4 Bed Texas Style Ranch Home Plan 3044 Sq Ft 51795HZ Architectural Designs House Plans
4 Bedroom House Single Storey House Plans
One Story 4 Bedroom Farm House Style House Plan 8817 Plan 8817





