Finding the perfect home design can be an exciting journey. A well-thought-out house plan not only enhances your living experience but also reflects your personal style and needs. Among various options, 4 bedroom house plans are particularly popular.
These designs cater to families, providing ample space for everyone. Whether you have children, guests, or need a home office, a 4 bedroom layout offers flexibility and comfort. Let’s explore some fantastic 4 bedroom house plan designs that might inspire your dream home.
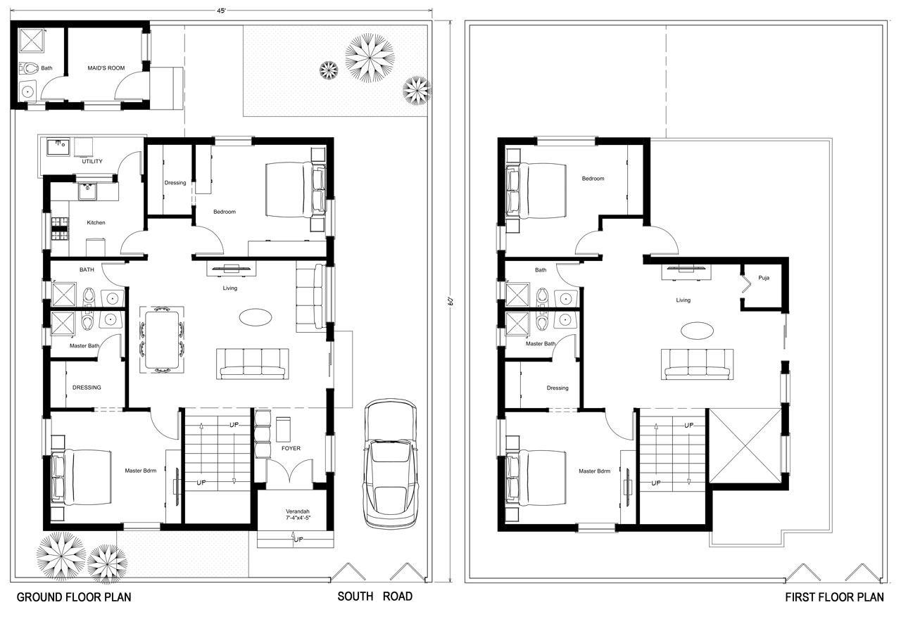
4 Bedroom House Plan Designs
4 Bedroom House Plan Designs
One popular design features an open-concept layout, seamlessly connecting the kitchen, dining, and living areas. This arrangement fosters interaction among family members while keeping the space bright and airy. It’s perfect for entertaining guests as well.
Another appealing option is the split-bedroom design. This layout separates the master suite from the other bedrooms, providing privacy for parents while keeping children close by. It’s ideal for families who value both togetherness and personal space.
For those who love outdoor living, consider a design with a spacious patio or deck. These areas extend your living space outdoors, perfect for summer barbecues or relaxing evenings under the stars. It enhances your lifestyle and adds value to your home.
Ultimately, choosing a 4 bedroom house plan should reflect your lifestyle and preferences. With so many designs available, you can find one that meets your needs while creating a warm and inviting atmosphere for your family.
Exploring various 4 bedroom house plan designs can lead you to the perfect fit for your family. Take your time to envision how each layout can enhance your daily life and create lasting memories.
