Are you in the market for a new house plan design? Look no further! We have a variety of 4 bedroom house plans that are sure to meet your needs. Whether you’re a growing family or just need extra space for guests, we’ve got you covered.
Our 4 bedroom house plan designs are perfect for those looking for a spacious and functional layout. With plenty of room for bedrooms, living spaces, and more, you’ll never feel cramped in one of our homes. Plus, our designs are customizable to suit your unique style and preferences.
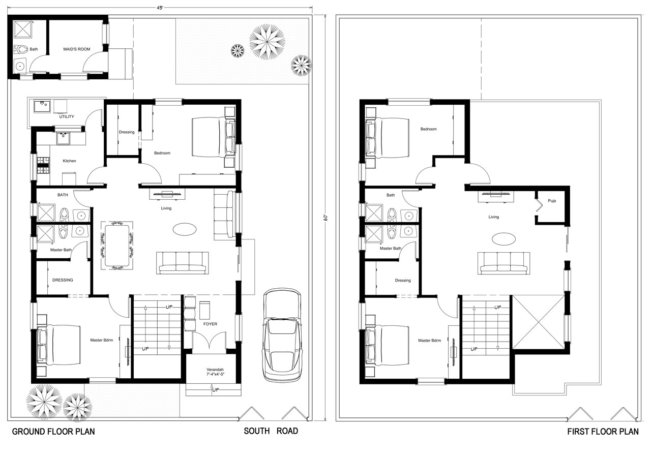
4 Bedroom House Plan Designs
4 Bedroom House Plan Designs
From traditional to modern styles, we have a range of 4 bedroom house plan designs to choose from. Whether you prefer an open floor plan or something more compartmentalized, we can help you find the perfect design to fit your lifestyle.
Our team of experienced architects and designers are here to guide you through the process of selecting and customizing your dream home. With attention to detail and a focus on quality, we ensure that every aspect of your new house plan is thoughtfully planned and executed.
Don’t settle for a cookie-cutter house plan when you can have a one-of-a-kind design that reflects your personality and needs. Contact us today to learn more about our 4 bedroom house plan designs and start building the home of your dreams!
4 Bedroom House Plans Houzone
House Design 12×17 With 4 Bedrooms Terrace Roof House Plans 3D
Truoba Class 520 4 Bedroom Modern House Plan
4 Bedroom House Plans Wilson Homes
4 Bedroom House Plans Infinity Homes Custom Built Homes In Mobile Alabama





