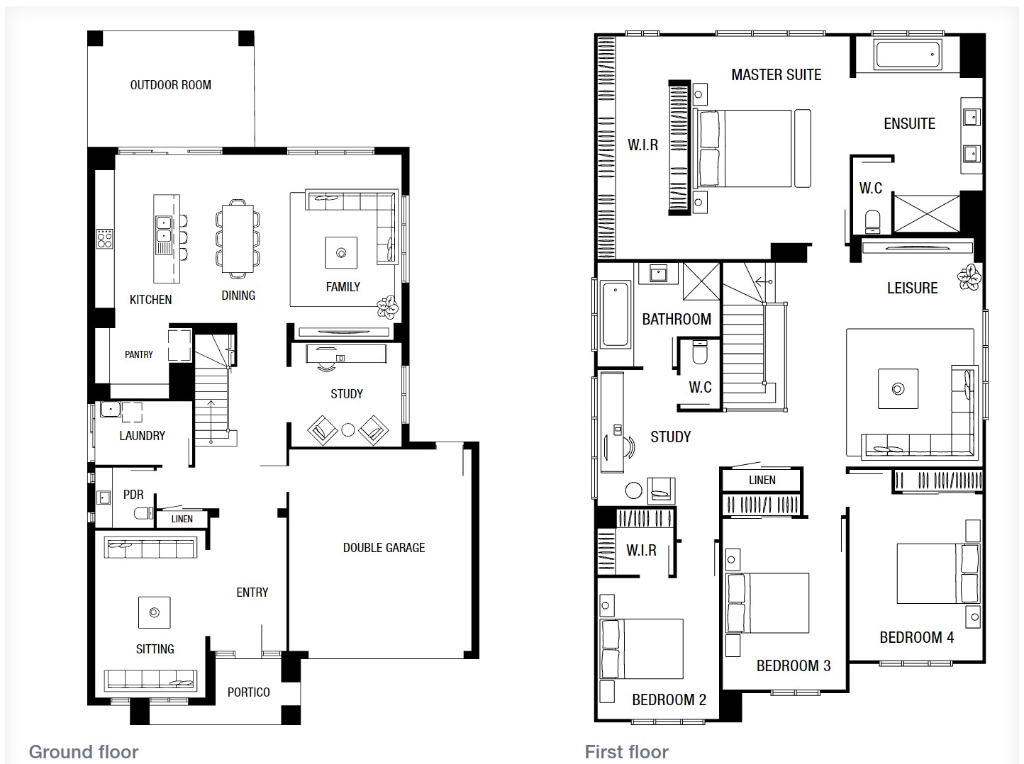
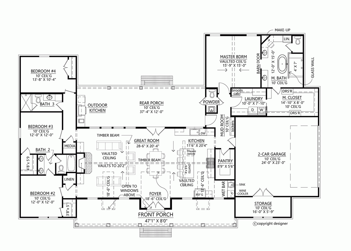
Finding the perfect home can be a daunting task, especially when considering the layout. A well-thought-out floor plan can make all the difference in how comfortable and functional your living space feels. One popular choice among families is the 4 bedroom house floor plan.
This layout offers ample space for everyone while maintaining a cozy atmosphere. With four bedrooms, you can accommodate family members, guests, or even create a home office. The versatility of this design makes it appealing to many homebuyers.
4 Bedroom House Floor Plan
4 Bedroom House Floor Plan
A 4 bedroom house floor plan typically features an open-concept living area that connects the kitchen, dining, and living spaces. This design encourages interaction and makes entertaining guests a breeze. Families can enjoy quality time together without feeling cramped.
Another advantage of this layout is the potential for privacy. Most designs place the master bedroom away from the other three bedrooms, providing a peaceful retreat for parents. This separation allows for quiet moments while still keeping everyone close.
Storage is also a key consideration in a 4 bedroom house floor plan. Many designs include built-in closets and additional storage spaces, helping to keep your home organized and clutter-free. This functionality is essential for busy households.
Ultimately, choosing a 4 bedroom house floor plan can enhance your living experience significantly. With thoughtful design elements that prioritize comfort and functionality, this layout is ideal for families looking to create lasting memories together.
