Thinking of building your dream home? Consider 4 bedroom ‘H-shaped house plans for a spacious and stylish layout. These designs offer ample space for a growing family while providing a modern and unique aesthetic.
With a central courtyard connecting the two wings of the house, 4 bedroom ‘H-shaped house plans create a private outdoor space for relaxation and entertainment. The layout also allows for plenty of natural light and ventilation throughout the home.
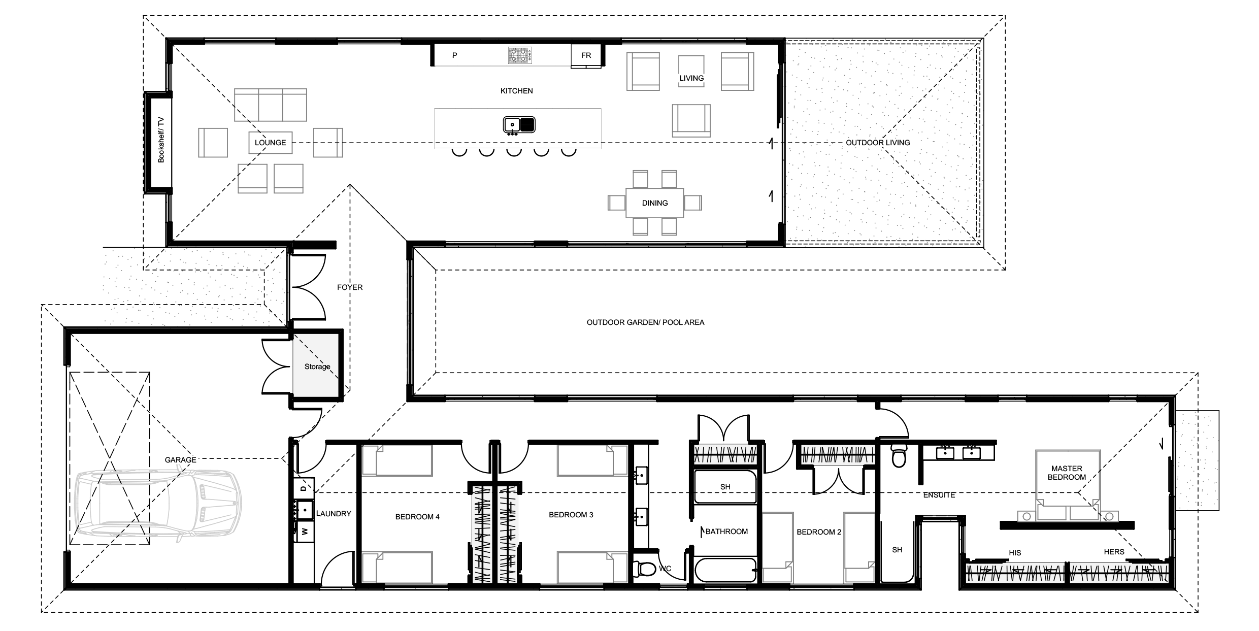
4 Bedroom ‘H-Shaped House Plans
Discover the Benefits of 4 Bedroom ‘H-Shaped House Plans
One of the main advantages of this design is the separation of living areas from bedrooms, providing privacy and quiet spaces for relaxation. The central courtyard can be a versatile outdoor area for gardening, outdoor dining, or simply enjoying nature.
Another benefit of 4 bedroom ‘H-shaped house plans is the flexibility they offer in terms of customization. Whether you prefer an open-plan layout or more defined spaces, this design allows for various configurations to suit your lifestyle and preferences.
Overall, 4 bedroom ‘H-shaped house plans are a great option for those looking for a modern and functional home design. With ample space, natural light, and a unique layout, these plans offer both style and comfort for you and your family to enjoy.
Ready to start planning your dream home? Consider 4 bedroom ‘H-shaped house plans for a versatile and stylish living space that meets all your needs.
Our Top 7 H style House Plans
Three bedroom Contemporary House Plan Plan 4292
Warlander House Plan 4 Bedroom Home Orange Homes
Floor Plan Friday Country Home For All The Family
Floor Plan Friday 4 Bedroom H Shaped Home





