Looking for the perfect 4 bedroom ensuite house plan that suits your family’s needs? Well, you’re in luck because we’ve got just the thing for you! With ample space and privacy, this house plan is sure to impress.
Imagine coming home to a spacious, well-designed house where each bedroom has its own ensuite bathroom. No more fighting over who gets to use the bathroom first in the morning – everyone can have their own private space to relax and unwind.
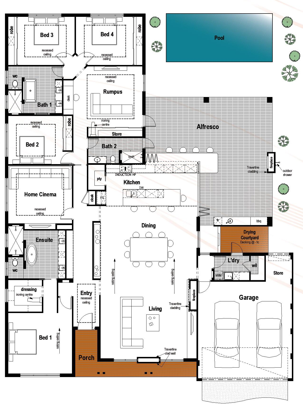
4 Bedroom Ensuite House Plan
4 Bedroom Ensuite House Plan
Our 4 bedroom ensuite house plan offers the perfect blend of comfort and functionality. With a master bedroom that includes a luxurious ensuite bathroom and walk-in closet, you’ll feel like royalty every day.
The additional three bedrooms are perfect for kids, guests, or even a home office. Each room has its own ensuite bathroom, ensuring that everyone has their own personal space to retreat to at the end of the day.
The open-concept living and dining area is ideal for entertaining guests or spending quality time with family. The modern kitchen is a chef’s dream, with high-end appliances and plenty of counter space for meal prep.
Don’t miss out on the opportunity to own a 4 bedroom ensuite house plan that ticks all the boxes. Say goodbye to cramped living spaces and hello to a home that truly meets your family’s needs and exceeds your expectations.
Internal Pool 4 Bedroom House Plans Full Concept Plans For Sale Etsy
40 X 60 Modern House Architectural House Plans 4 Bedroom PDF Download EBay UK
4 Bedroom Floor Plans Buildi
Floor Plan Friday 4 Bedroom 3 Bathroom With Modern Skillion Roof
Truoba Class 520 4 Bedroom Modern House Plan





