Barndominiums are gaining popularity for their unique blend of rustic charm and modern convenience. These versatile structures offer ample space and can be customized to fit various lifestyles and needs, making them an appealing choice for many homeowners.
Among the various designs, 4 bedroom barndominium house plans stand out for families or those who love entertaining guests. With enough room for everyone, these plans provide comfort and functionality without sacrificing style.
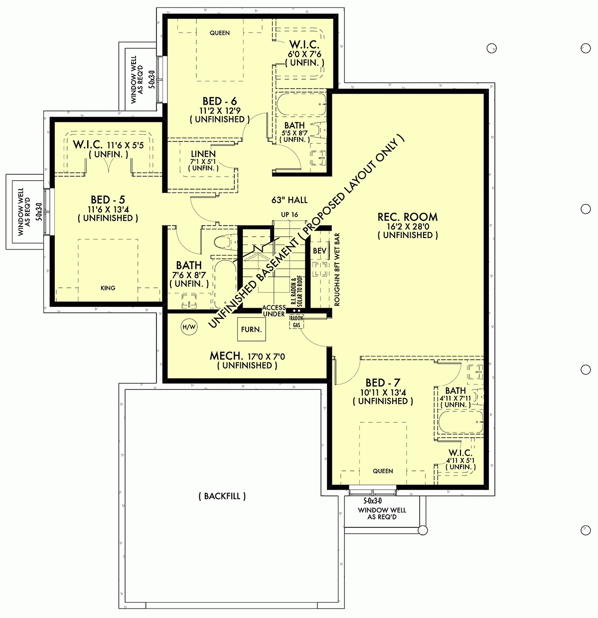
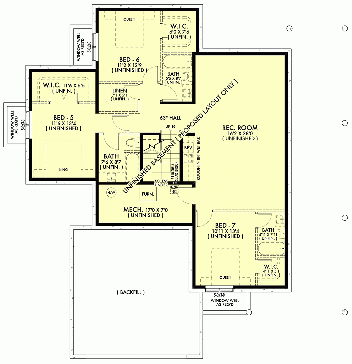
4 Bedroom Barndominium House Plans
4 Bedroom Barndominium House Plans
When considering 4 bedroom barndominium house plans, think about the layout that best suits your family. Open floor plans are popular, allowing for seamless interaction between living spaces while maximizing natural light throughout the home.
Another essential aspect is storage. Many barndominiums incorporate clever storage solutions, such as built-in shelves and spacious closets, ensuring that every inch of space is utilized efficiently. This feature is particularly beneficial for larger families.
Outdoor living spaces are also a highlight of these designs. Patios and porches can be integrated into the plans, providing perfect spots for relaxation or entertaining friends and family during warm evenings.
Ultimately, choosing the right 4 bedroom barndominium house plan can transform your living experience. With thoughtful design and customization options, you can create a home that reflects your personality and meets your family’s needs.
Exploring 4 bedroom barndominium house plans opens up a world of possibilities. These homes combine practicality with aesthetic appeal, making them an excellent choice for modern living while embracing a rustic vibe.
