Are you searching for the perfect 4 bedroom all ensuite house plan for your dream home? Look no further! With spacious bedrooms and modern amenities, this house plan is sure to meet all your needs.
Imagine coming home to a house that offers privacy and comfort for the whole family. This 4 bedroom all ensuite house plan is designed to provide each member of the household with their own personal space, complete with a private bathroom.
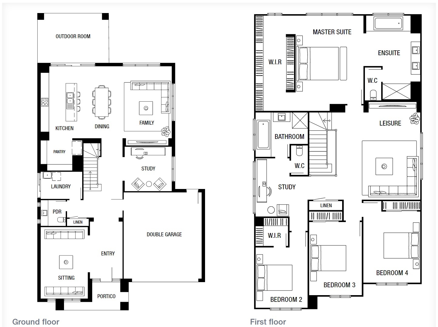
4 Bedroom All Ensuite House Plan
Discover the Benefits of a 4 Bedroom All Ensuite House Plan
One of the main advantages of this house plan is the convenience it offers. With each bedroom having its own ensuite bathroom, there’s no need to wait in line in the morning or worry about sharing a bathroom with others.
Additionally, the 4 bedroom all ensuite house plan provides flexibility for guests or extended family members. Whether you have visitors staying over for the weekend or elderly parents living with you, everyone can enjoy their own private space.
Furthermore, this house plan promotes a sense of luxury and sophistication. The ensuite bathrooms are designed with high-quality fixtures and finishes, creating a spa-like atmosphere that you can indulge in every day.
Don’t miss out on the opportunity to own a 4 bedroom all ensuite house plan that offers comfort, convenience, and elegance. Contact us today to learn more about how you can turn your dream home into a reality!
4 Bed Transitional House Plan With Vaulted Spaces Indoors And Out 3402 Sq Ft 270045AF Architectural Designs House Plans
4 Bedroom Floor Plans Buildi
Floor Plan Friday 4 Bedroom 3 Bathroom With Modern Skillion Roof
4 Bedroom Apartment House Plans
Truoba Class 520 4 Bedroom Modern House Plan





