Finding the perfect home can be a daunting task, especially when considering space and functionality. A well-designed house plan can make all the difference in creating a comfortable living environment for you and your family.
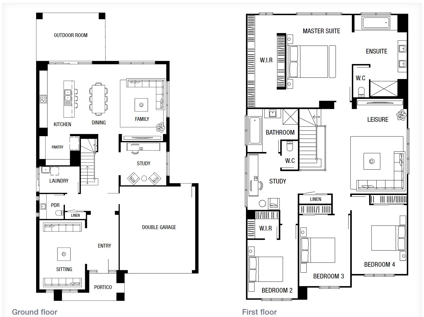
Among the various options available, 4 bedroom 2 storey house plans stand out for their versatility and spaciousness. These plans cater to families of all sizes, providing ample room for everyone to thrive.
4 Bedroom 2 Storey House Plans
4 Bedroom 2 Storey House Plans
One of the key benefits of 4 bedroom 2 storey house plans is their ability to maximize space. With bedrooms on the upper floor, you can enjoy privacy while keeping common areas on the ground floor accessible for family gatherings.
These plans often feature open-concept layouts that enhance natural light and airflow. This design not only makes the home feel larger but also creates a welcoming atmosphere for guests and family alike.
Additionally, many 4 bedroom 2 storey house plans include outdoor spaces like balconies or patios. These areas provide perfect spots for relaxation or entertaining, allowing you to enjoy the outdoors right from your home.
Choosing a 4 bedroom 2 storey house plan means investing in a future-proof design that adapts to your family’s changing needs. Whether you have young children or teenagers, this layout offers flexibility and comfort.
Ultimately, selecting the right house plan is crucial for creating a happy home. With so many options available, exploring 4 bedroom 2 storey house plans can lead you to your dream living space.
