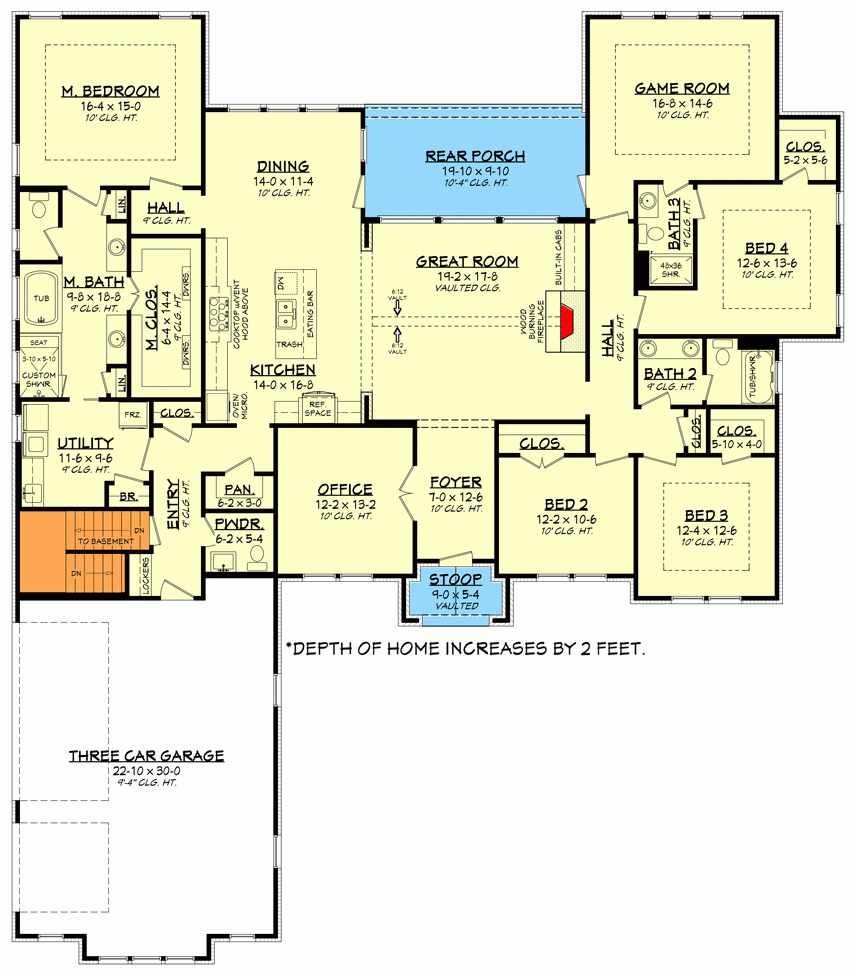
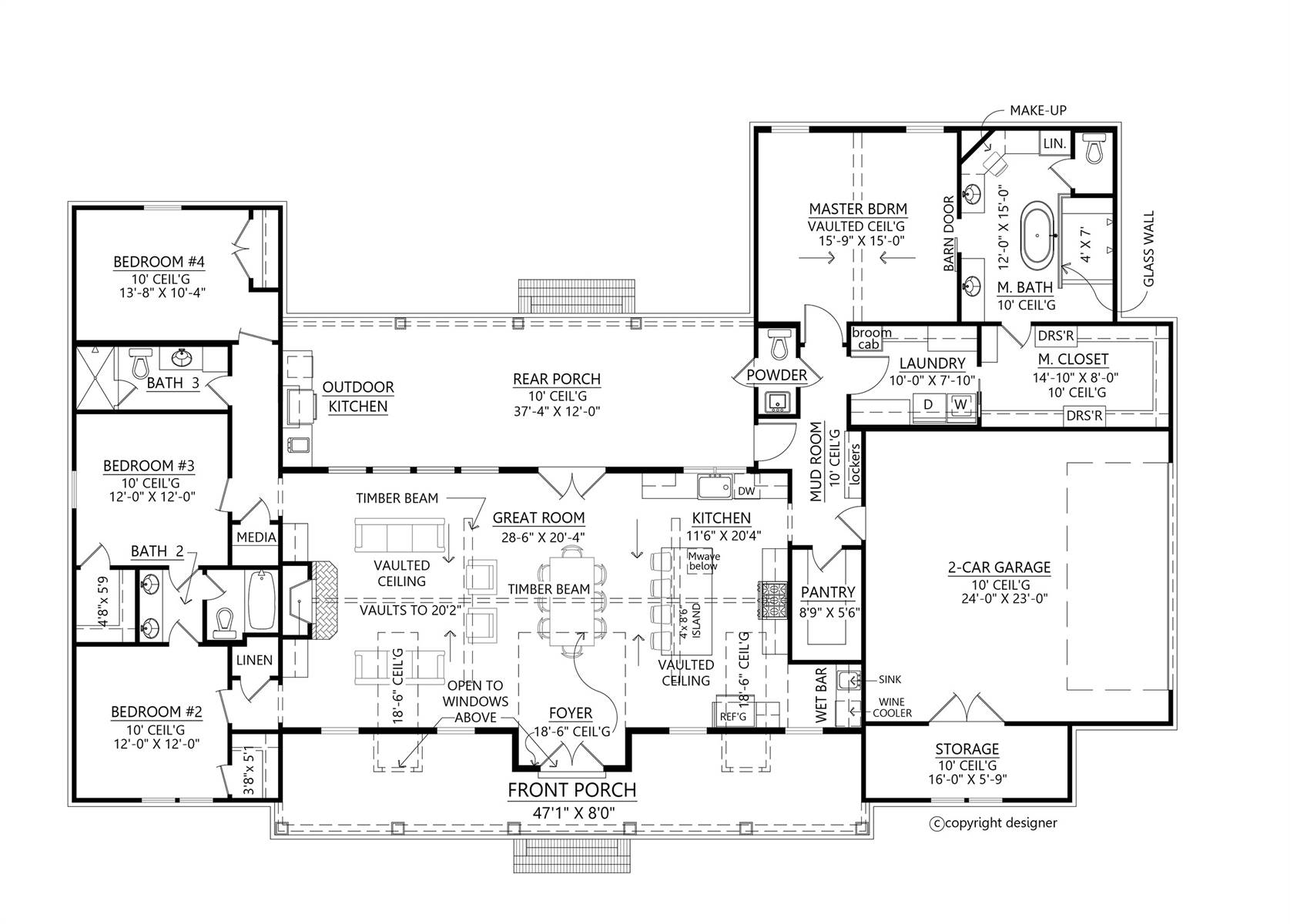
Looking for the perfect 4 bedroom 1 level house plans for your family? You’ve come to the right place! With spacious layouts and convenient designs, these homes offer comfort and style.
Imagine the ease of having all your living space on one floor. No more stairs to climb or wasted space. These house plans are ideal for families of all sizes, providing plenty of room to relax and entertain.
4 Bedroom 1 Level House Plans
Discover the Benefits of 4 Bedroom 1 Level House Plans
One of the main advantages of these house plans is the seamless flow between rooms. With open layouts and connected spaces, you can easily move from the living room to the kitchen to the bedrooms without any obstacles.
Additionally, 4 bedroom 1 level house plans offer flexibility and versatility. Whether you need an extra bedroom for guests or a home office, these designs can easily accommodate your changing needs.
Another benefit is the accessibility of one-level living. Perfect for individuals with mobility issues or those who simply prefer the convenience of a single story, these house plans prioritize comfort and convenience.
Don’t wait any longer to find your dream home! Explore our collection of 4 bedroom 1 level house plans today and start envisioning the perfect space for you and your family.
Country House Plans 4 Bedroom House Plans Home Plans 4 Bedroom Design 4 Bed Floor Plan 4 Bed Blueprints Homestead House Plan Etsy
Plan 45467 4 Bedroom Classic Ranch House Plan With Covered Porc
One Story Living 4 Bed Texas Style Ranch Home Plan 3044 Sq Ft 51795HZ Architectural Designs House Plans
One Story 4 Bedroom Farm House Style House Plan 8817 Plan 8817
4 Bedroom House Single Storey House Plans





