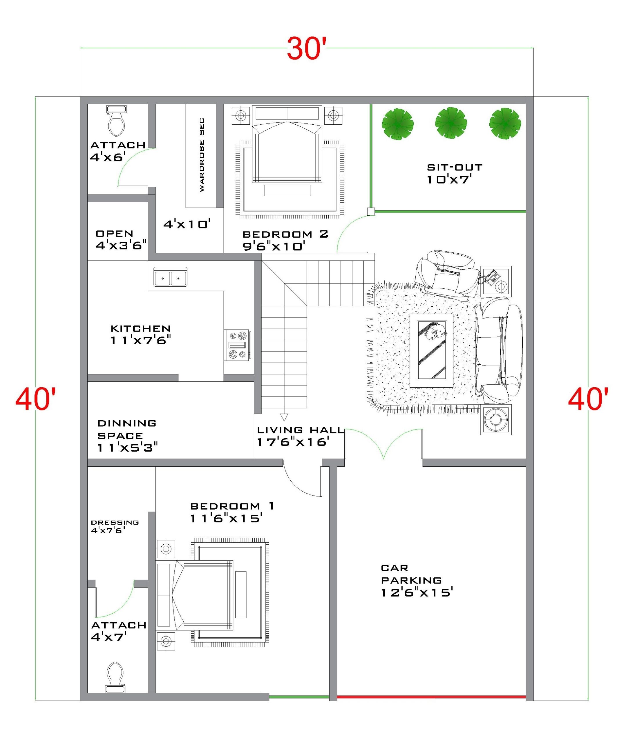
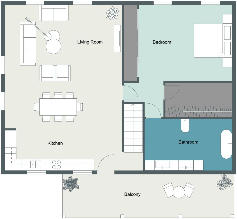
Are you looking for a cozy and compact living space? 30×40 house plans with 1 bedroom might be just what you need. These plans offer a perfect balance of functionality and style for individuals or couples looking for a comfortable home.
With a 30×40 house plan, you can make the most of your space without sacrificing comfort. The 1-bedroom layout provides enough room for a bedroom, living area, kitchen, and bathroom, all in a compact footprint. It’s the perfect solution for those looking to downsize or simplify their living space.
30×40 House Plans 1 Bedroom
Benefits of 30×40 House Plans 1 Bedroom
One of the main advantages of a 30×40 house plan with 1 bedroom is the cost-effectiveness. With a smaller footprint, these plans are more affordable to build and maintain, making them a great option for those on a budget. Additionally, the compact size makes it easier to clean and maintain, saving you time and effort.
Another benefit of a 30×40 house plan with 1 bedroom is the versatility it offers. Whether you’re looking for a starter home, a vacation retreat, or a rental property, these plans can be customized to suit your needs and lifestyle. You can add personal touches and design elements to make your space uniquely yours.
In conclusion, 30×40 house plans with 1 bedroom are a practical and stylish choice for anyone looking for a compact living space. With their cost-effectiveness, versatility, and comfort, these plans offer the perfect balance of functionality and style. Consider this option for your next home project!
30 X 40 Shouse 2 3 U0026 4 Bedroom Kit Packages
30 40 House Plan 30 40 Duplex House Plan Modern House Design small Home Design
30 40 House Plans 30 X 40 Elevation Design 2bhk House Plans
30×40 House Plan 1 Bedroom Etsy
30×40 House Plan With Loft





