If you’re looking for a cozy and efficient living space, a 30×40 house plan with one bedroom might be the perfect solution. This compact layout offers all the essentials in a small footprint, making it ideal for singles, couples, or small families.
With a 30×40 house plan, you can make the most of every square inch of your home. From a spacious bedroom to a functional kitchen and living area, this design maximizes space without sacrificing comfort. Plus, the open floor plan creates a seamless flow between rooms, making it feel even more spacious.
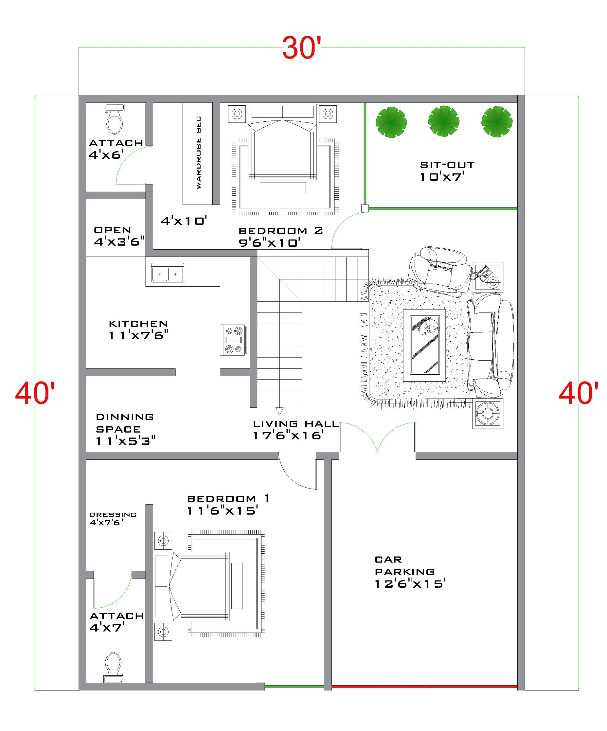
30×40 House Plan One Bedroom
30×40 House Plan One Bedroom
One of the key benefits of a 30×40 house plan with one bedroom is its versatility. Whether you’re a first-time homeowner, empty nester, or looking to downsize, this layout can be customized to suit your lifestyle and needs. You can also add personal touches, such as a home office, workout space, or outdoor patio, to make it truly your own.
Another advantage of a 30×40 house plan is its affordability. With a smaller footprint, you’ll save on construction costs, maintenance, and utilities. This makes it an attractive option for budget-conscious individuals or those looking to minimize their environmental impact.
In conclusion, a 30×40 house plan with one bedroom offers a practical and stylish solution for anyone seeking a compact and comfortable living space. With its efficient design, customization options, and cost-effective benefits, this layout is a popular choice for modern homeowners looking to simplify their lives without sacrificing quality.
30 40 House Plan 30 40 Duplex House Plan Modern House Design small Home Design
30 40 House Plans 30 X 40 Elevation Design 2bhk House Plans
30×40 House Plan 1 Bedroom Etsy
30×40 House Plan With Loft
30×40 House Plan With Loft





