If you’re looking for a cozy and practical living space, 30×40 1 bedroom house plans might be the perfect fit for you. These plans offer a compact yet comfortable layout that is ideal for singles, couples, or small families.
With a 30×40 footprint, these house plans provide just the right amount of space for a bedroom, bathroom, kitchen, and living area. They are designed to maximize every square foot, ensuring that you have everything you need without any wasted space.
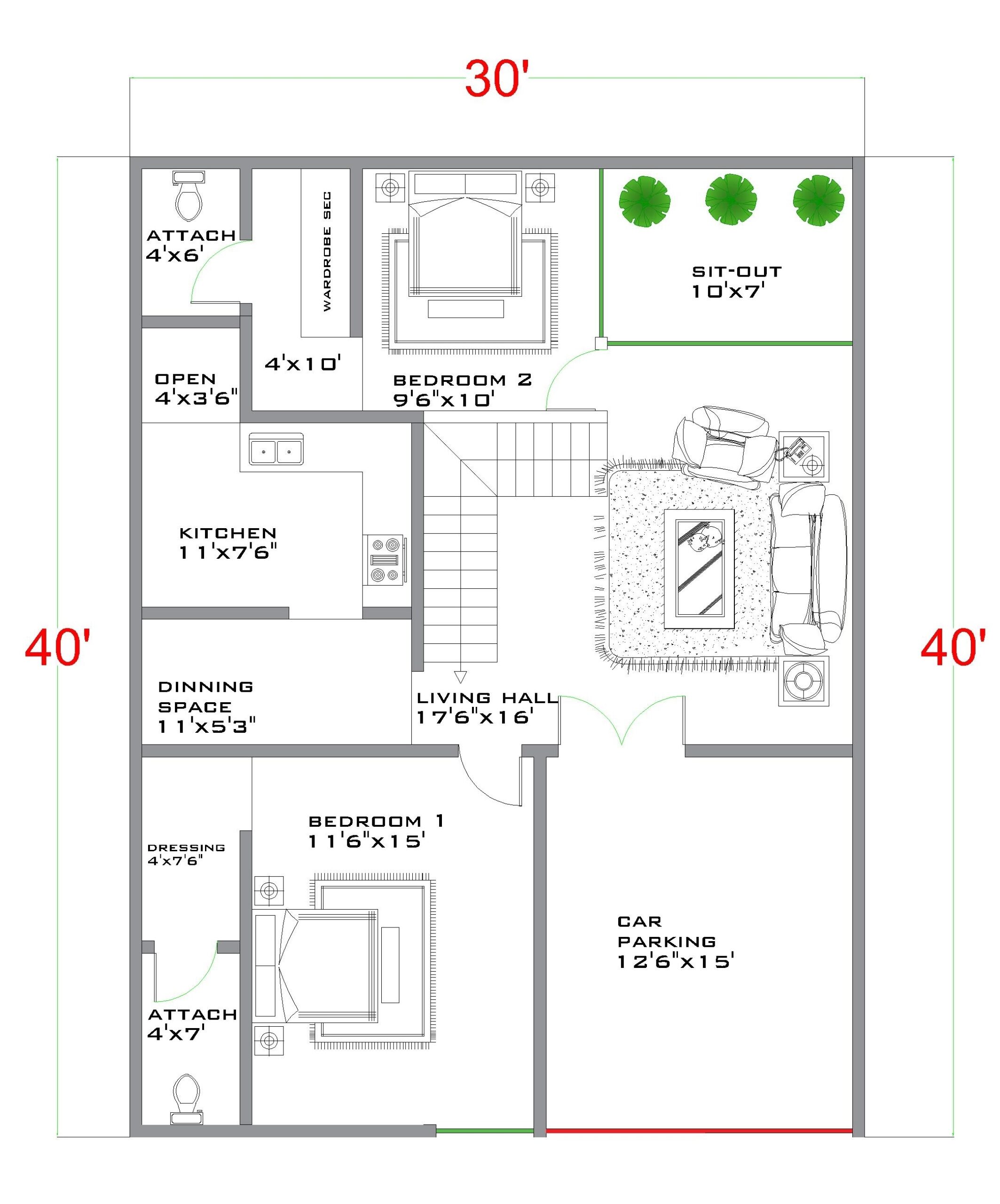
30×40 1 Bedroom House Plans
Explore the Possibilities with 30×40 1 Bedroom House Plans
Whether you’re looking to downsize, build a vacation home, or create a rental property, 30×40 1 bedroom house plans offer endless possibilities. You can customize the layout to suit your lifestyle and needs, making it truly your own.
These house plans are also a great option for budget-conscious individuals who want to build a smaller, more affordable home without sacrificing style or functionality. With a 30×40 layout, you can create a space that is both practical and aesthetically pleasing.
From modern designs to traditional styles, there are countless options available when it comes to 30×40 1 bedroom house plans. Whether you prefer an open-concept layout or a more compartmentalized design, you can find a plan that suits your taste and preferences.
So, if you’re in the market for a compact yet comfortable living space, consider exploring 30×40 1 bedroom house plans. With their practical layouts and customizable designs, these plans offer a great solution for anyone looking to build their dream home.
House Plan 80829 Traditional Style With 732 Sq Ft 1 Bed 1 Bat
30×40 House Plan With Loft
30 40 House Plans 30 X 40 Elevation Design 2bhk House Plans
30×40 House Plan 1 Bedroom Etsy
30×40 House Plan With Loft





