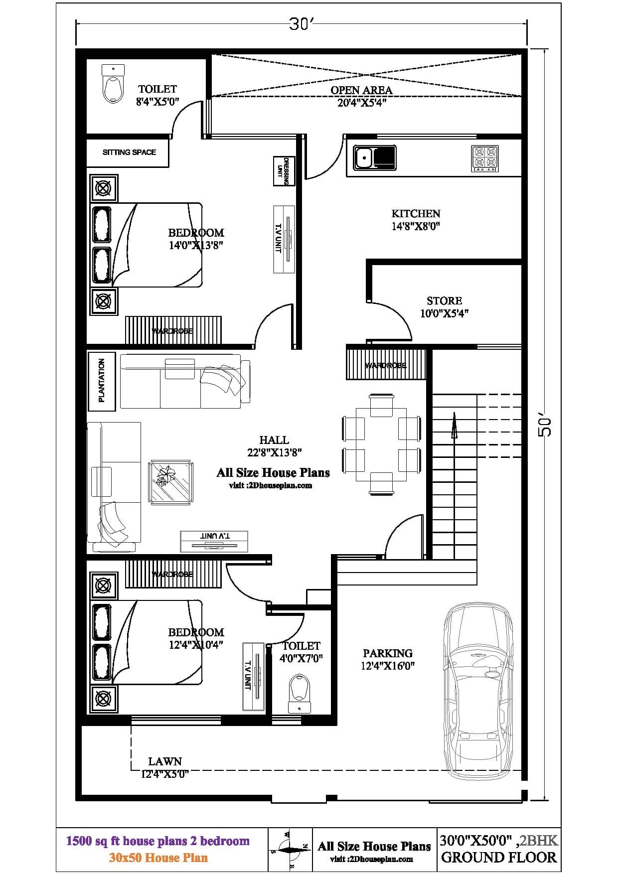
If you’re in the market for a cozy and affordable home, a 30 50 house plan with 2 bedrooms might be just what you need. These plans are perfect for small families, couples, or individuals looking for a comfortable and functional living space.
With 2 bedrooms, you’ll have plenty of room for a master suite and a guest room or home office. The open floor plan design allows for easy flow between the kitchen, living room, and dining area, making the space feel larger than it is.
30 50 House Plan 2 Bedroom
Benefits of a 30 50 House Plan 2 Bedroom
One of the main benefits of a 30 50 house plan with 2 bedrooms is that it’s more affordable to build and maintain than a larger home. With fewer square feet to heat and cool, you’ll save money on utility bills.
Another advantage is that a smaller home is easier to clean and maintain, saving you time and energy. Plus, with only 2 bedrooms, you’ll have less space to clutter up with unnecessary belongings, helping you stay organized and clutter-free.
Overall, a 30 50 house plan with 2 bedrooms offers a perfect balance of space and functionality. Whether you’re a young couple just starting out, a small family looking to downsize, or an individual in need of a compact yet comfortable home, this type of plan is worth considering.
If you’re interested in exploring 30 50 house plans with 2 bedrooms further, reach out to a reputable architect or home builder in your area. They can help you customize a plan to suit your specific needs and budget, ensuring you end up with a home that’s perfect for you.
30 50 House Plan 2 BHK North Facing With Vastu Architego
Duplex House 30 X 50 House Plan Files
30 Feet By 50 Feet Home Plan Everyone Will Like Acha Homes Page 1000
30 X 50 House Plan 2BHK Architego
30 X 50 House Plan 2 BHK East Facing Architego





