If you’re looking to downsize or simplify your living space, 3 bedroom tiny house plans with a loft could be the perfect solution for you. These plans offer a cozy and efficient layout that maximizes every square foot.
With a loft, you can take advantage of vertical space and create a separate area for sleeping, working, or relaxing. This adds versatility to your tiny home and allows you to make the most of the available space.
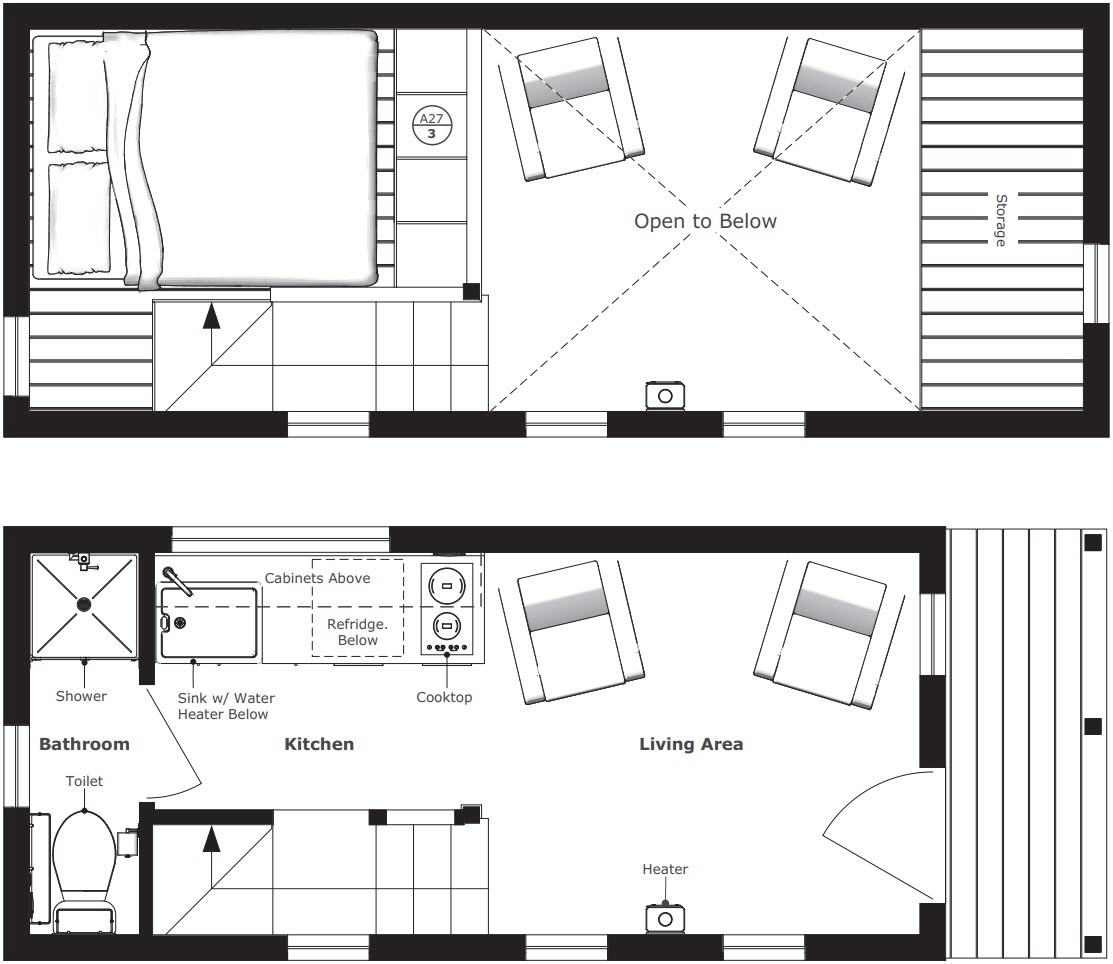
3 Bedroom Tiny House Plans Loft
Discover the Benefits of 3 Bedroom Tiny House Plans with Loft
Not only do 3 bedroom tiny house plans with a loft offer functionality, but they also provide a sense of openness and airiness to the space. The loft area can be accessed by a ladder or staircase, adding a unique touch to your home.
By incorporating a loft into your tiny house design, you can create a multi-functional space that meets your needs and lifestyle. Whether you use it as a guest bedroom, home office, or storage area, the possibilities are endless.
Overall, 3 bedroom tiny house plans with a loft offer a practical and stylish living solution for those looking to simplify their lives and reduce their environmental footprint. Embrace the simplicity and charm of tiny living with a space that is both functional and beautiful.
Experience the joy of living in a compact and well-designed space that prioritizes efficiency and comfort. Explore the possibilities of 3 bedroom tiny house plans with a loft and discover a new way of living that is both sustainable and fulfilling.
Tiny House Plans Camila
Green Loft Willow House Plan Three Story Small Lot Home Design M 2610
832 SQ FT Tiny House 16 X 33 3
832 SQ FT Tiny House 16 X 33 3
Small 3 Bedroom House Plans Pin Up Houses





