Are you looking to build your dream home in South Africa? With the right house plans, you can turn your vision into reality. A popular choice for many homeowners is a 3-bedroom house plan, offering space and comfort for the whole family.
When considering 3-bedroom South African house plans, it’s important to think about your specific needs and preferences. Whether you prefer a modern design or a more traditional style, there are plenty of options to choose from to suit your taste and lifestyle.
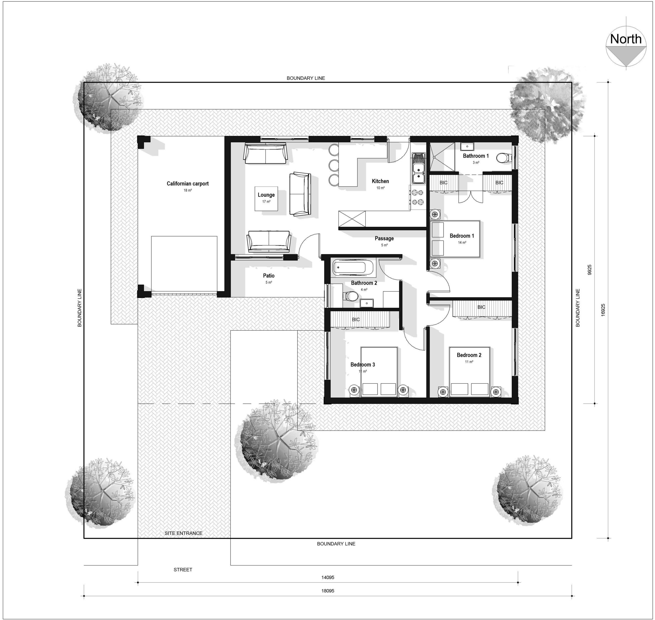
3 Bedroom South African House Plans
3 Bedroom South African House Plans
One of the key benefits of a 3-bedroom house plan is the versatility it offers. With three bedrooms, you have the flexibility to use the extra room as a home office, guest room, or playroom for the kids. This added space can make a big difference in how you use and enjoy your home.
Another advantage of 3-bedroom South African house plans is the potential for outdoor living. Many plans include features such as a patio, deck, or outdoor entertainment area, allowing you to make the most of the beautiful South African climate and landscape.
Whether you’re a first-time homeowner or looking to upgrade to a larger space, 3-bedroom South African house plans are a popular choice for their practicality, flexibility, and style. With the right plan, you can create a home that meets your needs and reflects your personal taste.
With so many options available, finding the perfect 3-bedroom house plan for your South African dream home is easier than ever. Start exploring your options today and take the first step towards building the home of your dreams.
3 Bedroom House Plans BLA 021 7S My Building Plans South Africa
Small 3 Bedroom House Plan With Pictures 55sqm Plandeluxe
3 Bedroom House Plan MLB 069S My Building Plans South Africa
3 Bedroom House 3B 2B 1C 113 Architect Plan
Modern 3 Bedroom House Plans PDF In South Africa Nethouseplans





