Finding the perfect home design can be an exciting yet overwhelming journey. With so many options available, it’s essential to narrow down your choices to suit your lifestyle and needs. A 3 bedroom single storey house plan is a popular choice for many families.
This type of layout offers convenience and accessibility, making it ideal for various living situations. Whether you have young children or elderly family members, a single storey design eliminates the need for stairs, promoting safety and ease of movement.
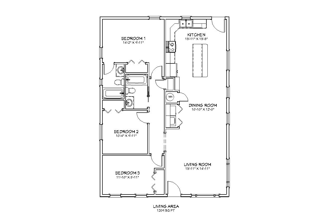
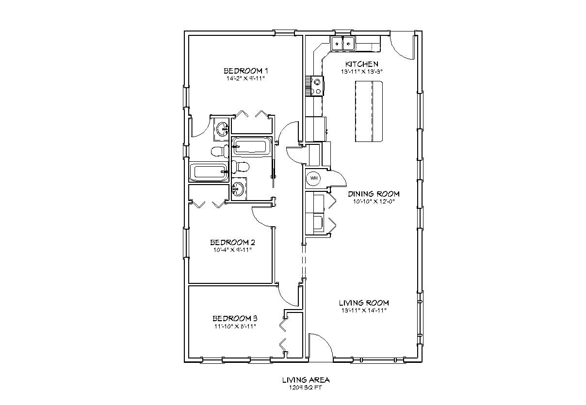
3 Bedroom Single Storey House Plans
3 Bedroom Single Storey House Plans
When considering 3 bedroom single storey house plans, think about how you want to utilize the space. Open floor plans are trendy, allowing for seamless transitions between living areas. This design fosters a sense of togetherness while providing ample room for entertaining guests.
Another aspect to consider is the orientation of your home. Positioning your house to maximize natural light can enhance the overall ambiance. Large windows and sliding doors can create a bright and airy atmosphere, making your home feel more inviting.
Don’t forget about outdoor spaces! A well-designed patio or garden area can extend your living space outdoors. This is perfect for family gatherings or simply enjoying a quiet evening under the stars.
Ultimately, choosing a 3 bedroom single storey house plan should reflect your personal style and functional needs. Take your time exploring different designs to find the one that feels just right for you and your family.
