Looking for the perfect 3 bedroom side split house plans for your dream home? You’ve come to the right place! These versatile layouts offer plenty of space and style for your family’s needs.
With a 3 bedroom side split house plan, you can enjoy the benefits of separate living areas while still maintaining an open and airy feel. These designs are perfect for families who value both privacy and togetherness.
3 Bedroom Side Split House Plans
3 Bedroom Side Split House Plans: The Perfect Balance
One of the key features of 3 bedroom side split house plans is the separation of living spaces. With bedrooms located on different levels, each family member can have their own private retreat while still being close to the main living areas.
These house plans often include spacious kitchens, dining areas, and living rooms that flow seamlessly together. This layout is ideal for entertaining guests or spending quality time with your family.
Additionally, 3 bedroom side split house plans typically feature large windows and outdoor living spaces to bring the beauty of the outdoors inside. You can enjoy natural light and views of your surroundings from every room in the house.
Whether you’re looking for a cozy family home or a stylish modern design, 3 bedroom side split house plans offer the perfect balance of comfort and functionality. Explore our collection of plans today and start building the home of your dreams!
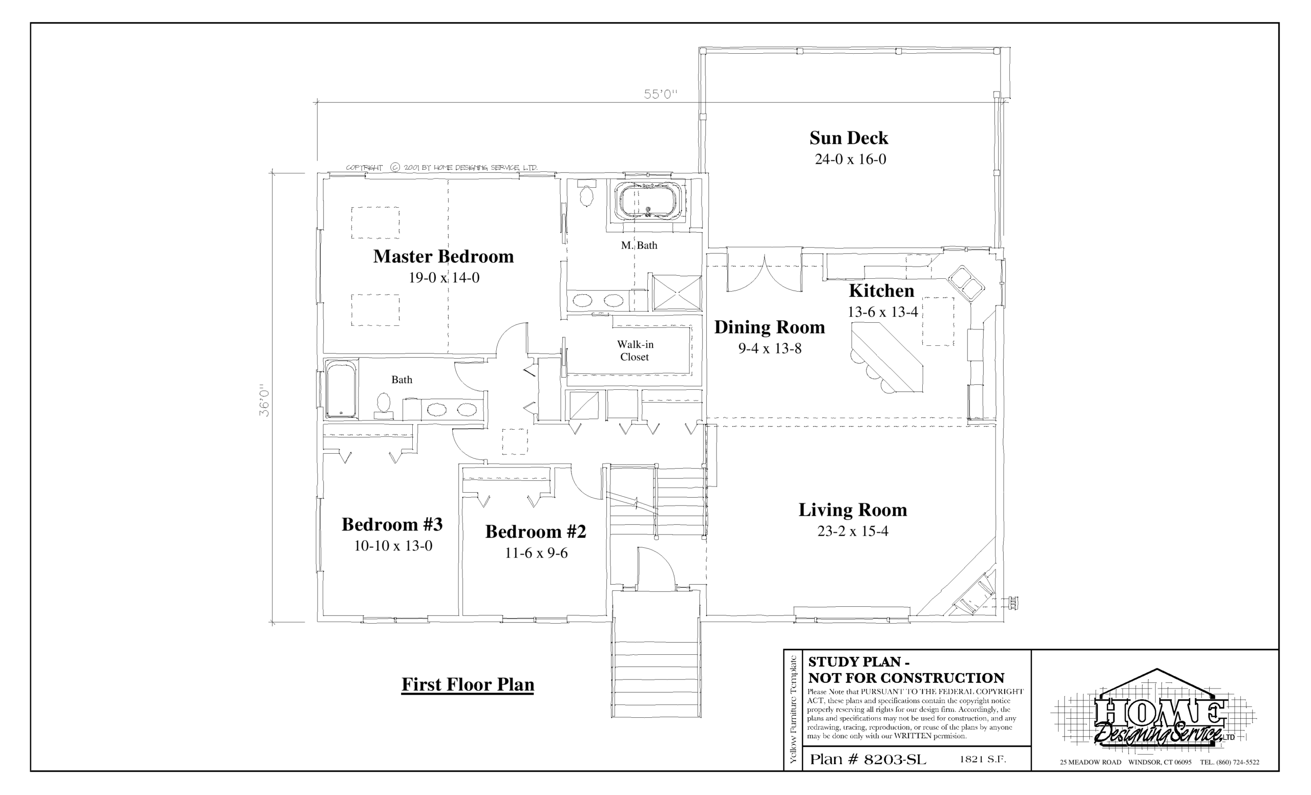
Split Level House Plan 8203 SL Home Designing Service Ltd
3 Bed Contemporary Craftsman With Bonus Over Garage 2073 Sq Ft 51755HZ Architectural Designs House Plans
3 Bedroom One Story Ranch Style House Plan 6531 Plan 6531
Three Bedroom Country Floor Plan With Split Bedrooms
Plan 81264 3 Bedroom Split Level House Plan With Drive Under Ga





